Italiano
English
240.000 €
117 m2
2 Camere
1 Bagni
2° piano - con ascensore
C
ANNUNCIO INCOMPLETO / DA FINIRE

4 o più locali in vendita a Modena (Zona Viali)

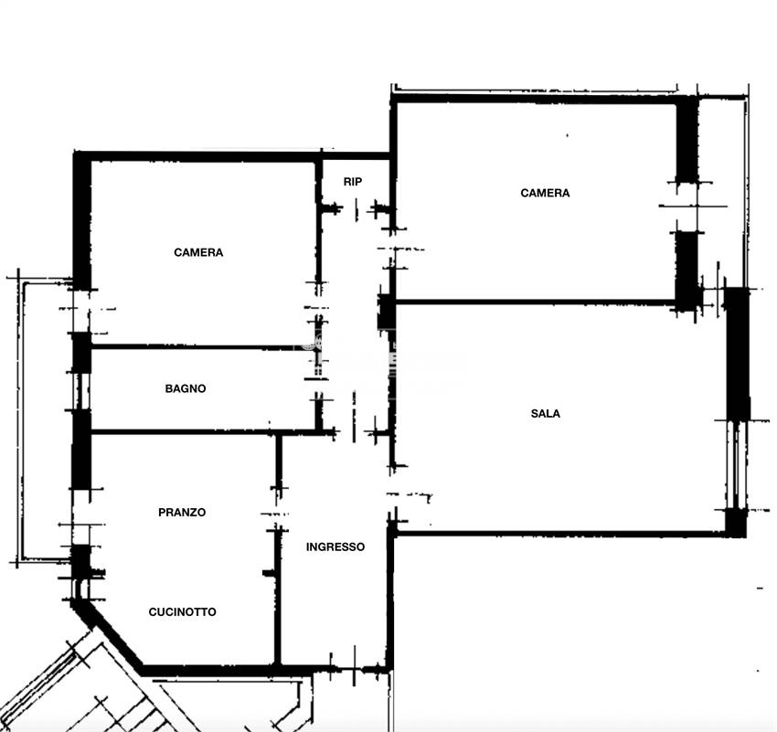
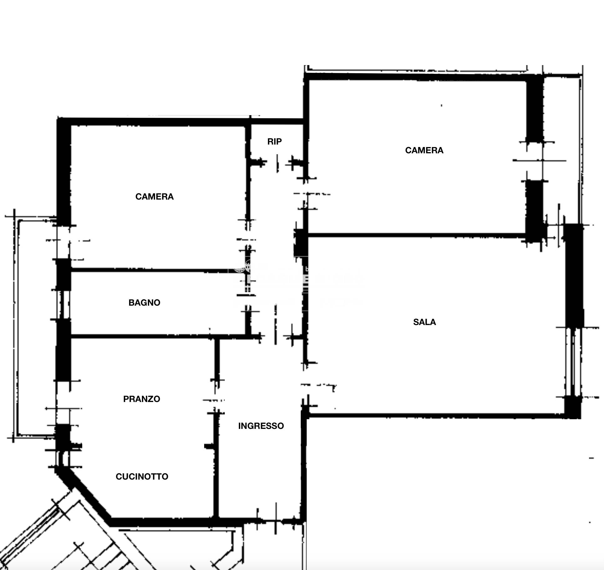
VD4777 Modena zona Viali ad.ze centro storico, appartamento in condominio di circa 120 mq commerciali li posto al secondo piano (con ascensore). Alloggio che all'interno è completamente da ristrutturare in condominio signorile e completamente ristrutturato con cappotto, composto da: ingresso, ampio soggiorno con balcone ben esposto al sole, cucina abitabile, 2 grandi camere matrimoniali, un bagno. Una cantina al piano interrato e una soffitta nel sottotetto. Riscaldamento e acqua calda sanitaria centralizzati con conta-calorie. € 240.000
Caratteristiche principali Vedi tutte
Codice
VD4777
Città
Modena (Zona Viali)
Categoria
4 o più locali
Prezzo
240.000 €
Spese condominiali
2.400 € / anno
Locali
4
Camere
2
Bagni
1
Mq
117
Balconi
1
Mq Balcone
8,75
Piano
Secondo
Classe energetica
C
Stato Immobile
Come da Origini
Grado
Medio
Lati Liberi
2
Riscaldamento
Centralizzato
Tipo Impianto
Radiatori

Accessori: Ascensore

Chiudi tutte
Planimetrie
Photo 1
Generali
Photo 1Photo 2
Photo 3Photo 4
Photo 5Photo 6
Photo 7Photo 8
Photo 9Photo 10
Photo 11Photo 12
Photo 13
Agenzia di riferimento
Immobiliare Medaglie d'Oro
Immobiliare Medaglie d'Oro
Piazza Alessandro Manzoni, 4/1
41124 Modena MO
Rif. Annuncio VD4777
Vantaggi GruppoMore
Puoi acquistare questo immobile anche rivolgendoti ad un altro Agente Immobiliare del Gruppo MORE
Guarda l'elenco
Richiedi informazioni
Invia
Condividi su
Condividi su Facebook Condividi su Twitter Condividi su Linkedin Condividi su Whatsapp
Cookie preference