APP.TO DI 136MQ IN PALAZZINA NUOVA IN S.AGNESE
Italiano
510.603 €
136 m2
2 Camere
2 Bagni
2° piano - senza ascensore
A4
0,4 kWh/m²a

APP.TO DI 136MQ IN PALAZZINA NUOVA IN S.AGNESEIn trattativa

In vendita • Modena (Sant' Agnese) - VIA MONCHIO, 75
VD865-D. Nostra esclusiva. Zona Sant'Agnese, Via Monchio, in palazzina di prossima realizzazione in Classe Energetica A4 di tre piani e otto unità vendesi app.to "D" di 136 mq. comm. ubicato al piano secondo di tre con ascensore.
Caratteristica peculiare dell’intervento è l’adozione di avanzate tecnologie impiantistiche d’avanguardia volte al massimo contenimento del consumo energetico nel pieno rispetto dell’ambiente, infatti tutte le unità immobiliari saranno edificate in classe “A4” (secondo la delibera della Regione Emilia Romagna dgr. 20 luglio 2015, n. 967).
Il capitolato prevede finiture di pregio tutte personalizzabili, pavimenti in parquet (marca Foglie D'oro) e ceramiche grandi formati, rubinetterie e sanitari di design (marca Villeroy e Boch), riscaldamento autonomo a pavimento in pompa di calore, aria condizionata, pannelli fotovoltaici, infissi in pvc dotati di zanzariere e tapparelle motorizzate, addolcitore acque, videocitofono, videosorveglianza condominiale e predisposizione per antifurto.
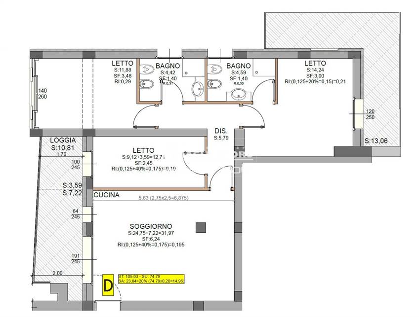
App.to così disposto: ingresso, soggiorno con cucina a vista e sbocco su loggia coperta, disimpegno notte, tre camere da letto (una dotata di balcone e una di loggia coperta) e due bagni finestrati.
Possibilità di personalizzazione degli spazi e delle finiture interne.
Possibilità di scelta tra diverse autorimesse e posti auto al piano terra a parte nel prezzo.
Prezzo: 510.603 €.
Consegna giugno 2027.
Per informazioni e visite: 335-6880908 geom. Fella Cristiano, 335-7853006 geom. Zara Costantino.
In alternativa ulteriori info sul ns sito GRUPPOMORE.IT digitando CODICE DI RIFERIMENTO o inviaci una mail gestionecantieri-gruppomore@cataimm.it.it
Caratteristiche principali Vedi tutte
Codice
VD865-D
Città
Modena (Sant' Agnese)
Categoria
3 locali
Prezzo
510.603 €
Spese condominiali
800 € / anno
Locali
6
Camere
2
Bagni
2
Mq
136
Balconi
1
Terrazzi
1
Piano
Secondo
Classe energetica
A4
0,4 kWh/m²a
Stato Immobile
Nuovo
Grado
Signorile
Posizione
Centro
Panorama
Vista Aperta
Orientamento
Nord Ovest Sud Est
Lati Liberi
3
Arredi
Non Arredato
Tipo Soggiorno
Soggiorno
Tipo Cucina
A Vista
Riscaldamento
Autonomo
Tipo Riscaldam.
Pompa di Calore
Tipo Impianto
Pavimento
Fonte Energetica
Fotovoltaico
Acqua Calda
Autonoma
Raffrescamento
Split
Infissi
PVC Doppio Vetro
Serramenti
Nuovo
Persiana
Tapparella PVC
Pavim. Giorno
Ceramica
Pavim. Notte
Parquet
Pavim. Cucina
Ceramica
Pavim. Bagno
Ceramica
Accesso Disabili
Nessuna Barriera
Accesso interno disabili
Pieno accesso

Accessori: Antifurto, Aria Condizionata, Armadio a Muro, Cancello Elettrico, Doppi Vetri, Impianto Fotovoltaico, Passaggio Automobilistico, Passaggio Pedonale, Porta Blindata, Rete Dati, Tapparelle Elettriche, Tavolini Esterni, Video Citofono, Video Sorveglianza, Zanzariere

Chiudi tutte
Planimetrie
Photo 1
Photo 2
Mappa
VIA MONCHIO 75, Modena (MO)
Agenzia di riferimento
Immobiliare Medaglie d'Oro
Immobiliare Medaglie d'Oro
Piazza Manzoni, 4/1
41124 Modena MO
Rif. Annuncio VD865-D
Richiedi informazioni
Invia
Condividi su
Condividi su Facebook Condividi su Twitter Condividi su Linkedin Condividi su Whatsapp
Cookie preference