Italiano
English
435.000 €
192 m2
3 Camere
2 Bagni
1 Box
Piano rialzato - senza ascensore
G

Villetta schiera in vendita a Modena (Crocetta), ad.ze via Cimone

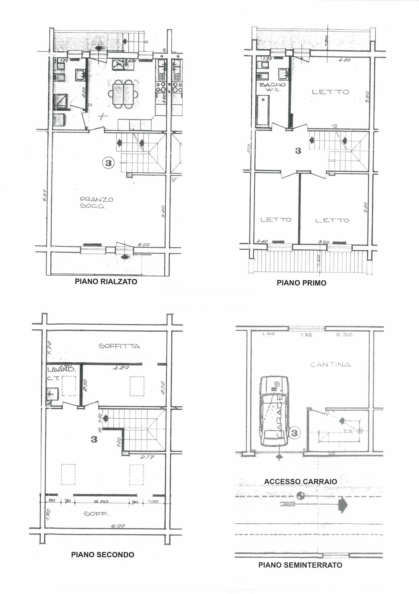
VD4929 Zona Crocetta, libera a fine anno villetta a schiera con ampio giardino esclusivo, composta da piano rialzato con un ampio soggiorno con camino, una cucina abitabile e bagno.
Al primo piano una comoda zona notte con due camere matrimoniali e una camera singola, balcone e bagno.
Al secondo piano ampia zona open space mansardata con lavanderia.
Completa la proprietà un box auto privato e un'ampia cantina.
Questa villetta a schiera è l'ideale per una famiglia che cerca una soluzione abitativa confortevole e funzionale, in una posizione comoda e ben servita. Euro 435.000, termo autonomo e aria condizionata
Caratteristiche principali Vedi tutte
Codice
VD4929
Città
Modena (Crocetta)
Categoria
Villetta schiera
Prezzo
435.000 €
Locali
6
Camere
3
Bagni
2
Mq
192
Box
1
Mq Box
16
Mq Giardino
150
Balconi
2
Mq Balcone
12
Piano
Rialzato
Classe energetica
G
Stato Immobile
Buono
Grado
Medio
Orientamento
Ovest Est
Lati Liberi
2
Giardino
Privato
Tipo Soggiorno
Soggiorno
Tipo Cucina
Abitabile
Riscaldamento
Autonomo
Tipo Riscaldam.
Caldaia
Tipo Impianto
Radiatori
Fonte Energetica
Metano
Acqua Calda
Autonoma
Raffrescamento
Split
Infissi
Legno Doppio Vetro
Serramenti
Buono
Persiana
Tapparella PVC
Pavim. Giorno
Ceramica
Pavim. Notte
Ceramica
Pavim. Cucina
Ceramica
Pavim. Bagno
Ceramica
Accesso Disabili
No

Accessori: Aria Condizionata, Camino, Cancello Elettrico, Doppi Vetri, Lavanderia, Porta Blindata, Ripostiglio, Zanzariere

Chiudi tutte
Planimetrie
PLANIMETRIA
PLANIMETRIA
Generali
GIARDINO PRIVATOGIARDINO PRIVATO
GIARDINO PRIVATOSOGGIORNO
SOGGIORNOSOGGIORNO
SOGGIORNOSOGGIORNO
SOGGIORNOCUCINA
PLANIMETRIACUCINA
GIARDINO RETROGIARDINO RETRO
BAGNO P. TERRABAGNO P. TERRA
ZONA NOTTECAMERA 1
CAMERA 2BALCONE
ZONA NOTTEBAGNO ZONA NOTTE
BAGNO ZONA NOTTECAMERA 3
SOFFITTACALDAIA
SOFFITTAPhoto 28
GIARDINOGIARDINO
GIARDINO
Mappa
ad.ze via Cimone , Modena (MO)
Agenzia di riferimento
Immobiliare Medaglie d'Oro
Immobiliare Medaglie d'Oro
Piazza Alessandro Manzoni, 4/1
41124 Modena MO
Rif. Annuncio VD4929
Addetto alle vendite
ZARA geom. Costantino
ZARA geom. Costantino
Vantaggi GruppoMore
Puoi acquistare questo immobile anche rivolgendoti ad un altro Agente Immobiliare del Gruppo MORE
Guarda l'elenco
Richiedi informazioni
Invia
Condividi su
Condividi su Facebook Condividi su Twitter Condividi su Linkedin Condividi su Whatsapp
Cookie preference