Italiano
English
80.000 €
196 m2
1 Bagni
Non classificabile

Laboratorio in vendita a Modena (Crocetta)

VD4860 Modena ad.ze Centro, proponiamo in vendita in zona Crocetta magazzino laboratorio artigianale o deposito posto a piano terra di piccola palazzina di 2 piani. L'immobile è nello stato originario la palazzina è degli anni '40 e la superficie commerciale complessiva è di 196mq. E' possibile Acquistare l'intero oppure una porzione da adibire ad esempio ad autorimessa.
L'immobile si trova nei pressi del nuovo Polo dell'automotive proprio a 50 mt alle ex Fonderie. Perfetto per l'uso attuale come deposito magazzino o laboratorio, non da escludere la possibilità di creare autorimesse e/o frazionamento in più unità con cambio di destinazione d'uso. Richiesta Euro 80.000
Caratteristiche principali Vedi tutte
Codice
VD4860
Città
Modena (Crocetta)
Categoria
Laboratorio
Prezzo
80.000 €
Locali
6
Bagni
1
Mq
196
Piano
Terra
Classe energetica
Non classificabile
Stato Immobile
Come da Origini
Grado
Economico
Orientamento
Nord Ovest Sud Est
Lati Liberi
4
Infissi
Legno
Serramenti
Da Sostituire
Pavimento
Cemento
Destinazione
Artigianale
Accesso Disabili
Nessuna Barriera
Accesso interno disabili
Pieno accesso
Isolamento
Non presente
Isolamento termico
Nessuno
Isolamento acustico
Nessuno
Chiudi tutte
Planimetrie
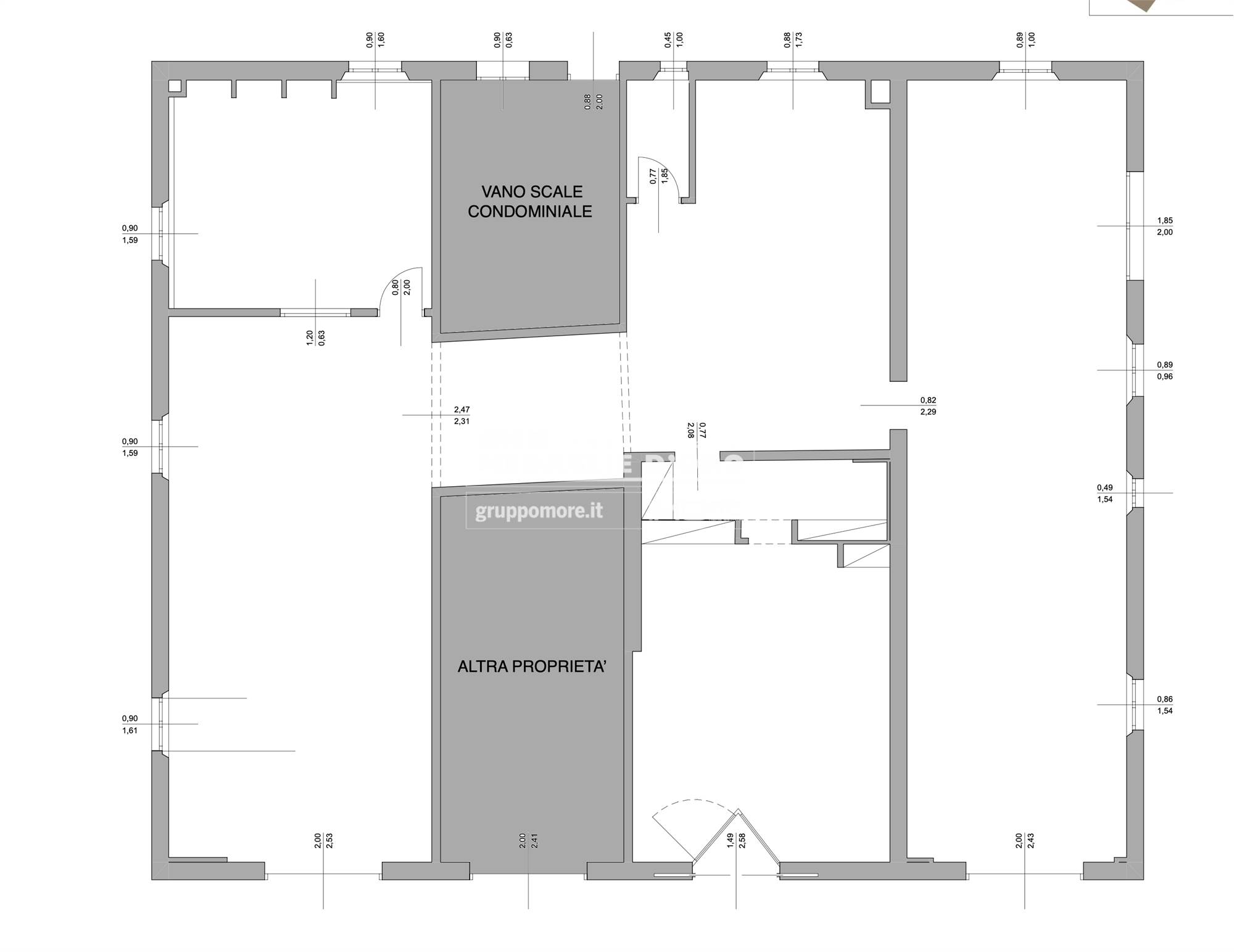
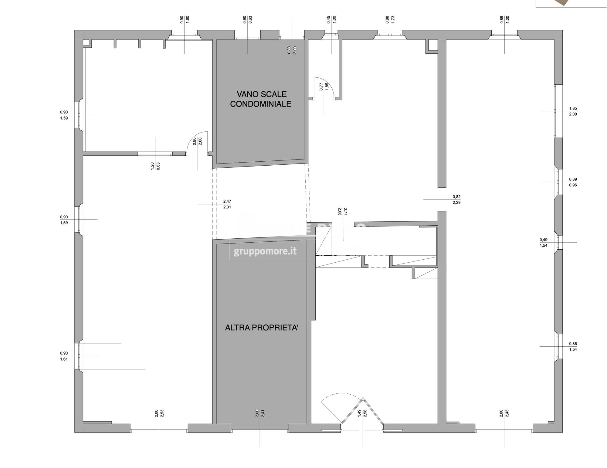
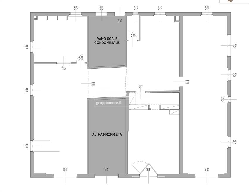
PLANIMETRIA STATO DI FATTO
PLANIMETRIA STATO DI FATTO
Generali
Photo 1Photo 2
RENDER DEL NUOVO POLO AUTOMOTIVEPLANIMETRIA
Photo 5
Agenzia di riferimento
Immobiliare Medaglie d'Oro
Immobiliare Medaglie d'Oro
Piazza Alessandro Manzoni, 4/1
41124 Modena MO
Rif. Annuncio VD4860
Vantaggi GruppoMore
Puoi acquistare questo immobile anche rivolgendoti ad un altro Agente Immobiliare del Gruppo MORE
Guarda l'elenco
Richiedi informazioni
Invia
Condividi su
Condividi su Facebook Condividi su Twitter Condividi su Linkedin Condividi su Whatsapp
Cookie preference