VD4758 Zona Buon Pastore, appartamento in ristrutturazione
Italiano
245.000 €
77 m2
2 Camere
1 Bagni
2° piano - senza ascensore
In fase di valutazione

VD4758 Zona Buon Pastore, appartamento in ristrutturazione

In vendita • Modena (Buon Pastore) - Via Tamburini
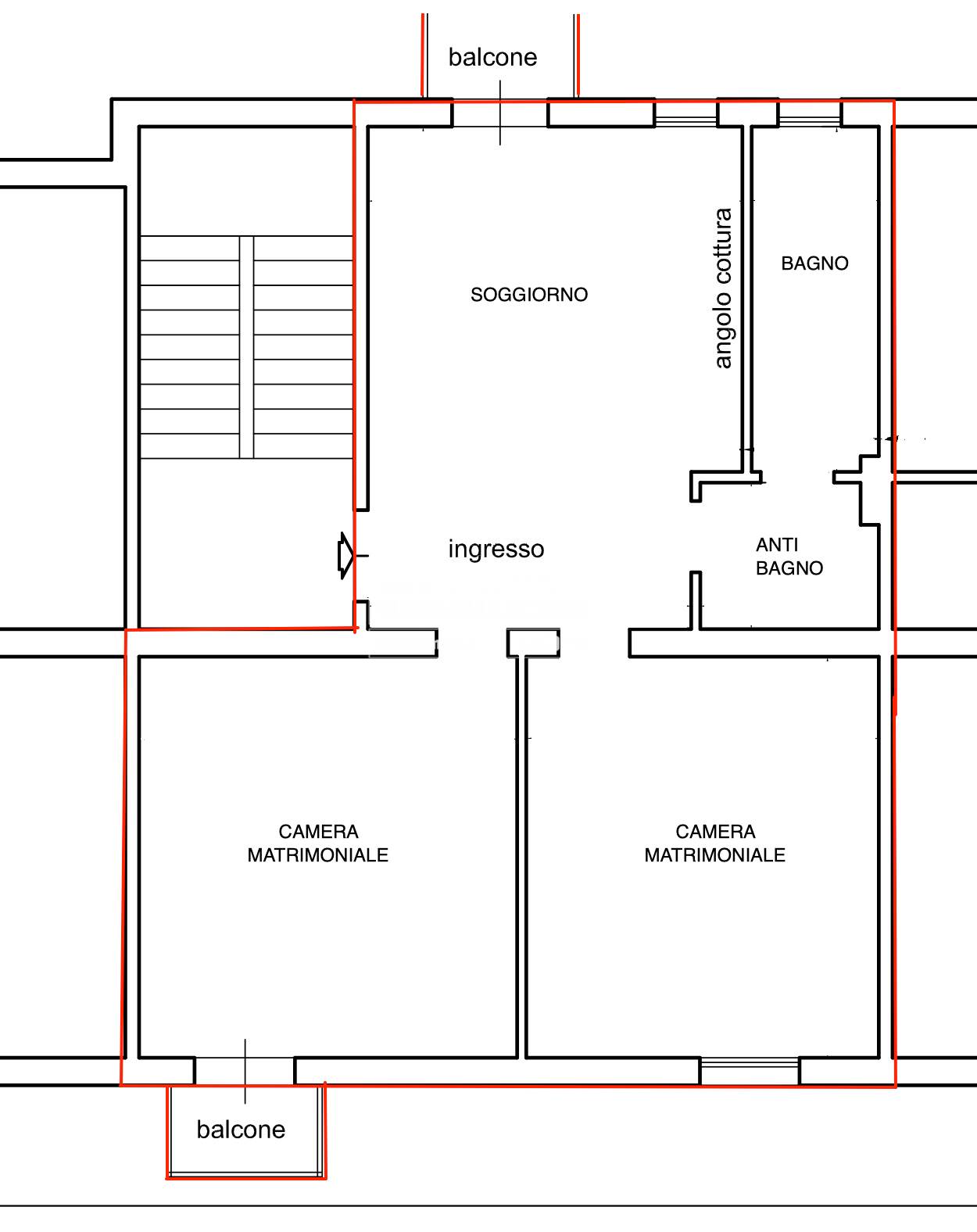
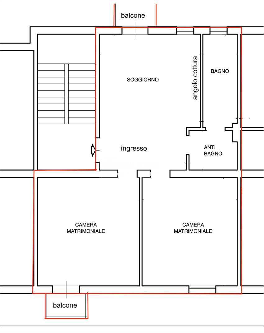
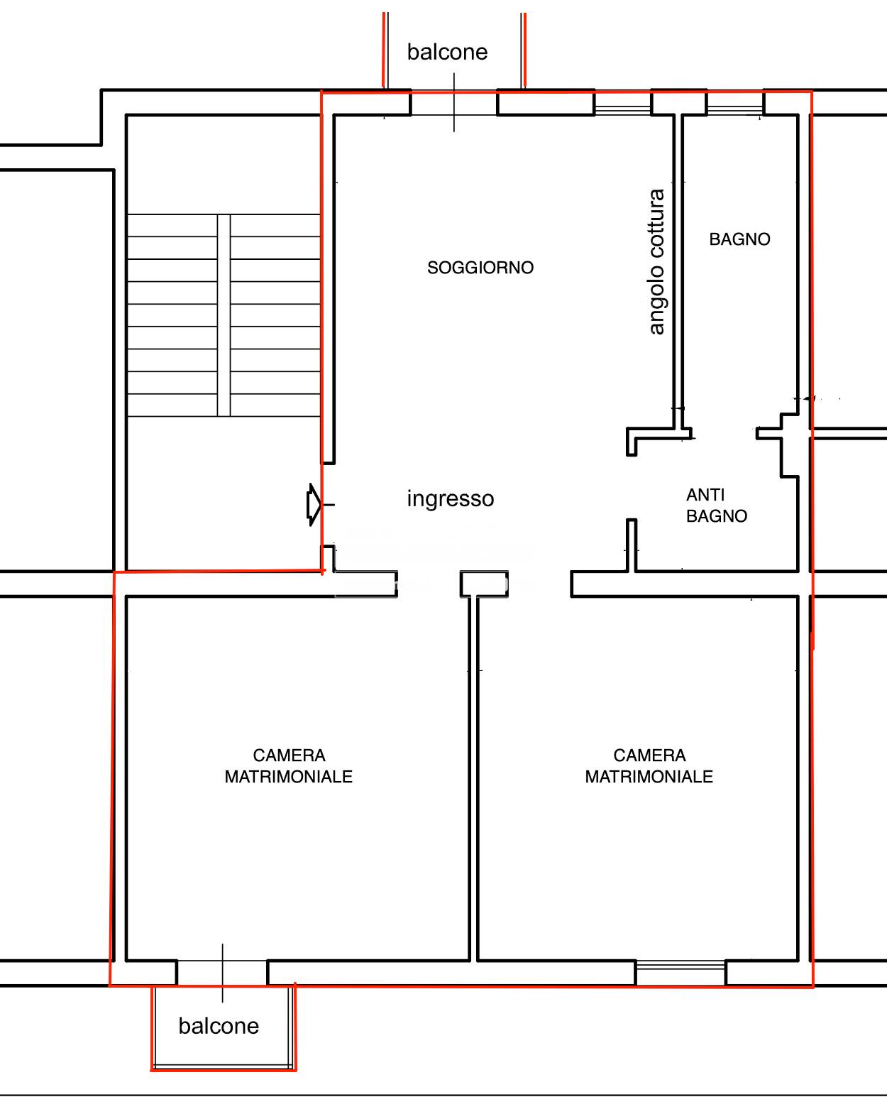
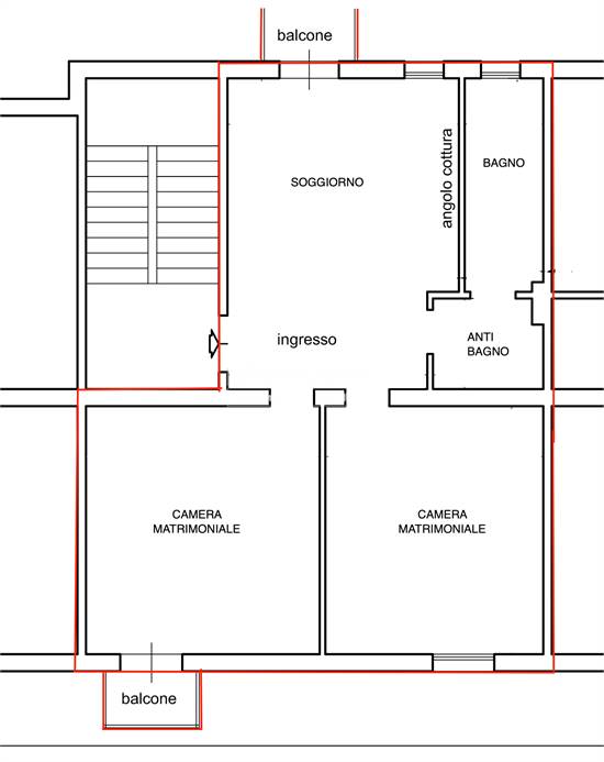
VD4758 ZONA BUON PASTORE, comoda ai servizi e vicina al centro storico, VENDESI appartamento COMPLETAMENTE RISTRUTTURATO posto al secondo piano di piccola palazzina senza ascensore. Composto da soggiorno con angolo cottura, anti bagno, bagno, due camere da letto matrimoniali e due balconi. Completo di ampia cantina posta al piano terra. Dotato di riscaldamento autonomo e Aria condizionata, Richiesta euro 245.000,00 tratt. Appartamento Molto interessante.
Caratteristiche principali Vedi tutte
Codice
VD4758
Città
Modena (Buon Pastore)
Categoria
Appartamento
Prezzo
245.000 €
Spese condominiali
1.000 € / anno
Locali
4
Camere
2
Bagni
1
Mq
77
Balconi
2
Mq Balcone
4
Piano
Secondo
Classe energetica
In fase di valutazione
Stato Immobile
Da Ristrutturare
Grado
Economico
Panorama
Vista Aperta
Orientamento
Sud Nord
Lati Liberi
2
Giardino
Comune
Tipo Soggiorno
Soggiorno
Tipo Cucina
Cucinotto
Riscaldamento
Autonomo
Tipo Riscaldam.
Caldaia
Tipo Impianto
Radiatori
Fonte Energetica
Metano
Acqua Calda
Autonoma
Raffrescamento
Split
Infissi
Legno
Serramenti
Nuovo
Persiana
Tapparella PVC
Pavim. Giorno
Ceramica
Pavim. Notte
Ceramica
Pavim. Cucina
Ceramica
Pavim. Bagno
Ceramica
Accesso Disabili
No

Accessori: Aria Condizionata, Doppi Vetri, Porta Blindata, Tapparelle Elettriche

Chiudi tutte
Planimetrie
Photo 1
Mappa
Via Tamburini , Modena (MO)
Agenzia di riferimento
Immobiliare Medaglie d'Oro
Immobiliare Medaglie d'Oro
Piazza Manzoni, 4/1
41124 Modena MO
Rif. Annuncio VD4758
Addetto alle vendite
TINCHELLI geom. Daniele
TINCHELLI geom. Daniele
Richiedi informazioni
Invia
Condividi su
Condividi su Facebook Condividi su Twitter Condividi su Linkedin Condividi su Whatsapp
Cookie preference