Italiano
English
240.000 €
80 m2
2 Camere
1 Bagni
2° piano - senza ascensore
D

Appartamento in vendita a Modena (Buon Pastore), Ad.ze Via Tamburini

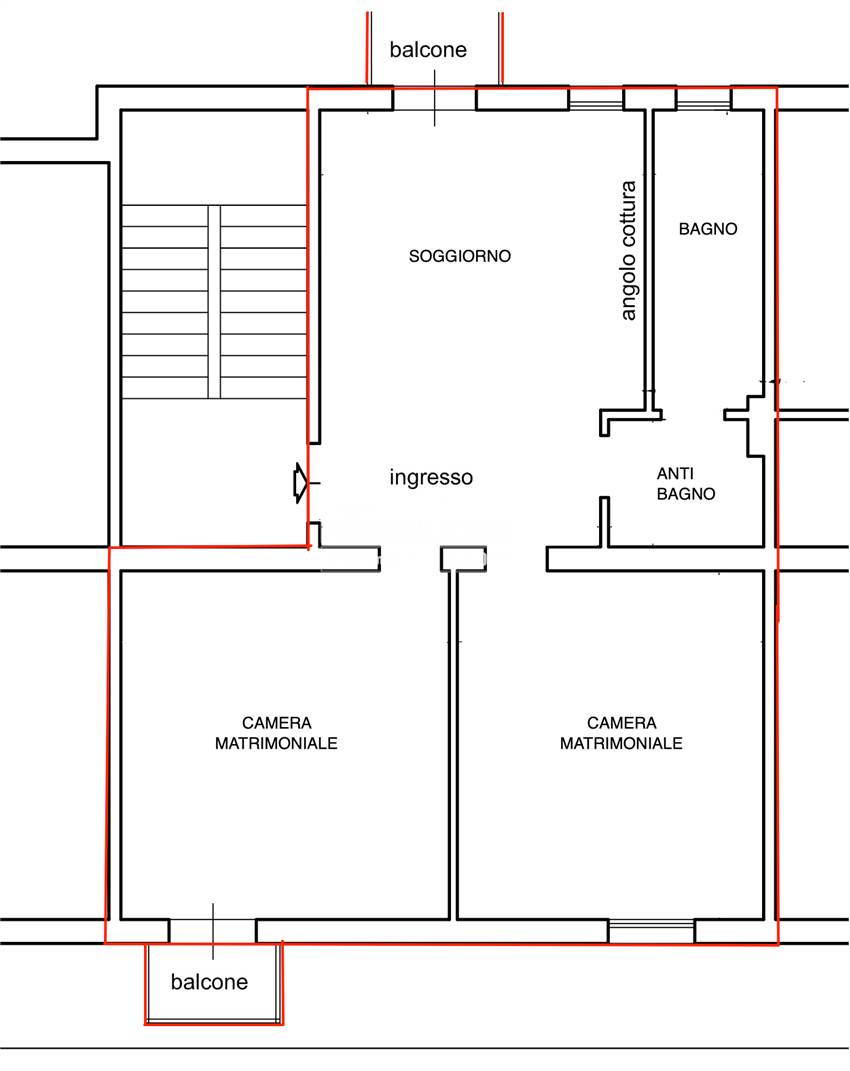
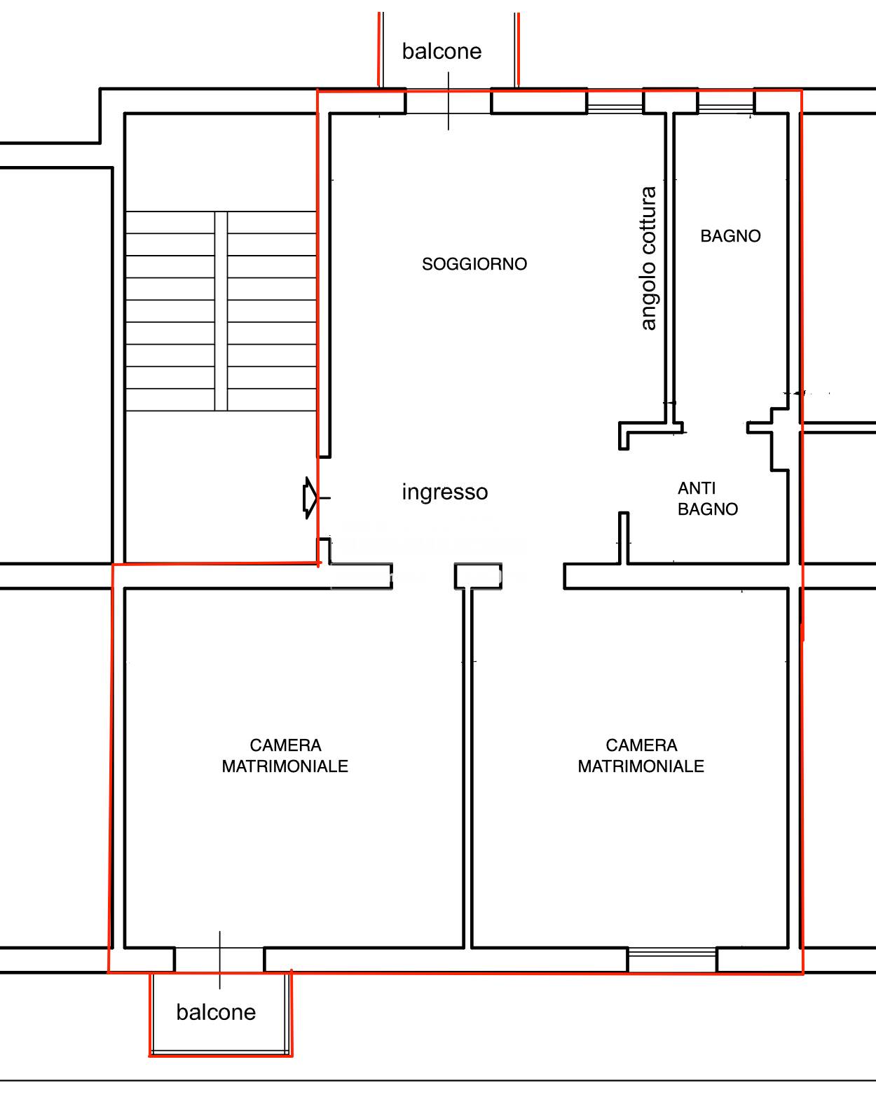
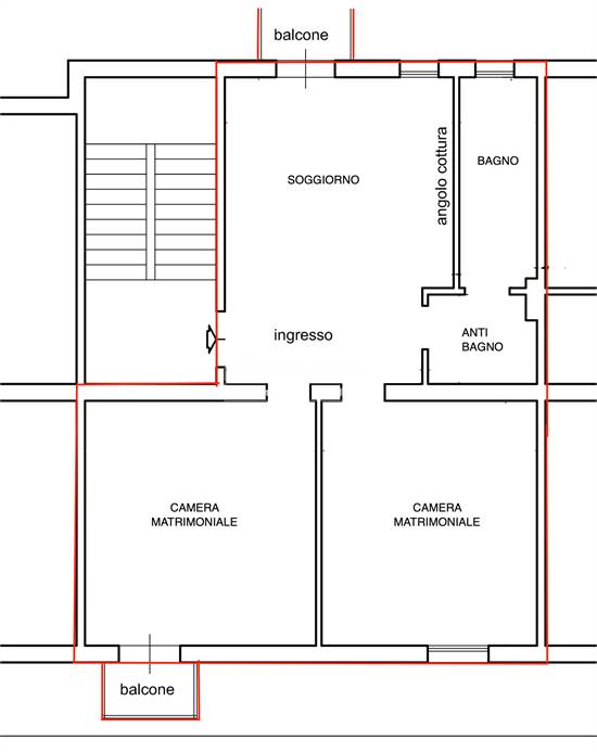
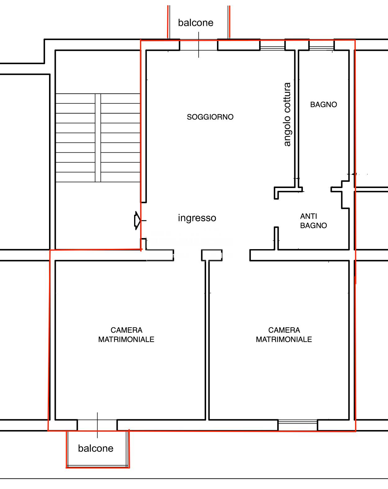
VD4758 ZONA BUON PASTORE, comoda ai servizi e vicina al centro storico, VENDESI appartamento COMPLETAMENTE RISTRUTTURATO posto al secondo piano di piccola palazzina. Composto da soggiorno con angolo cottura, anti bagno, bagno, due camere da letto matrimoniali e due balconi. Completo di ampia cantina posta al piano terra. Dotato di riscaldamento autonomo e Aria condizionata, Richiesta euro 240.000 tratt. Appartamento Molto interessante.
Caratteristiche principali Vedi tutte
Codice
VD4758
Città
Modena (Buon Pastore)
Categoria
Appartamento
Prezzo
240.000 €
Spese condominiali
1.000 € / anno
Locali
4
Camere
2
Bagni
1
Mq
80
Balconi
2
Mq Balcone
4
Piano
Secondo
Classe energetica
D
Stato Immobile
Ristrutturato
Grado
Economico
Panorama
Vista Aperta
Orientamento
Sud Nord
Lati Liberi
2
Giardino
Comune
Tipo Soggiorno
Soggiorno
Tipo Cucina
Cucinotto
Riscaldamento
Autonomo
Tipo Riscaldam.
Caldaia
Tipo Impianto
Radiatori
Fonte Energetica
Metano
Acqua Calda
Autonoma
Raffrescamento
Split
Infissi
Legno
Serramenti
Nuovo
Persiana
Tapparella PVC
Pavim. Giorno
Ceramica
Pavim. Notte
Ceramica
Pavim. Cucina
Ceramica
Pavim. Bagno
Ceramica
Accesso Disabili
No

Accessori: Aria Condizionata, Doppi Vetri, Porta Blindata, Tapparelle Elettriche

Chiudi tutte
Planimetrie
Photo 1
Generali
Photo 1Photo 2
Photo 3Photo 4
Photo 5Photo 6
Photo 7Photo 8
Photo 9Photo 10
Photo 11Photo 12
Photo 13Photo 14
Photo 15Photo 16
Photo 17Photo 18
Mappa
Ad.ze Via Tamburini , Modena (MO)
Agenzia di riferimento
Immobiliare Medaglie d'Oro
Immobiliare Medaglie d'Oro
Piazza Alessandro Manzoni, 4/1
41124 Modena MO
Rif. Annuncio VD4758
Addetto alle vendite
TINCHELLI geom. Daniele
TINCHELLI geom. Daniele
Vantaggi GruppoMore
Puoi acquistare questo immobile anche rivolgendoti ad un altro Agente Immobiliare del Gruppo MORE
Guarda l'elenco
Richiedi informazioni
Invia
Condividi su
Condividi su Facebook Condividi su Twitter Condividi su Linkedin Condividi su Whatsapp
Cookie preference