Italiano
English
340.000 €
110 m2
1 Bagni
1 Posti auto
G
162 kWh/m²a

Ufficio in vendita a Modena (Zona Viali), viale Martiri della Libertà

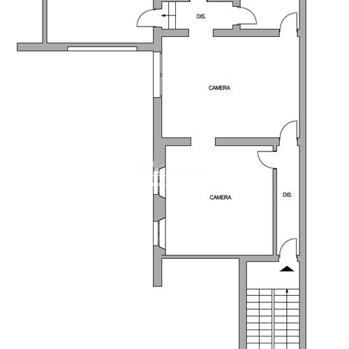
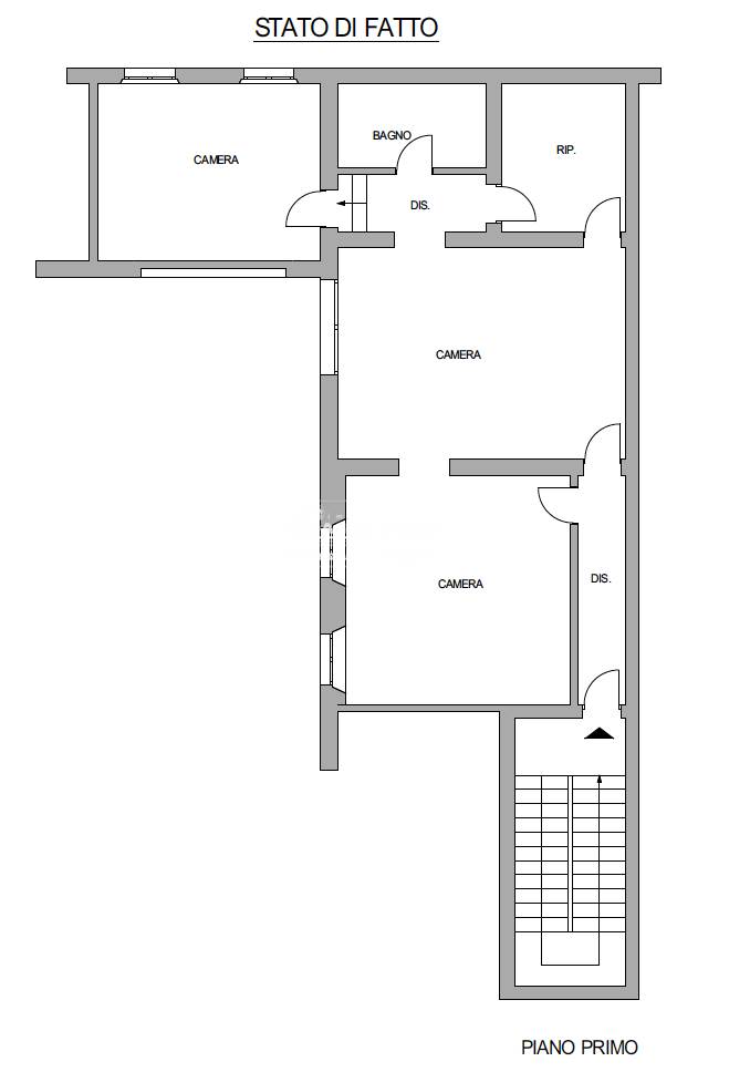
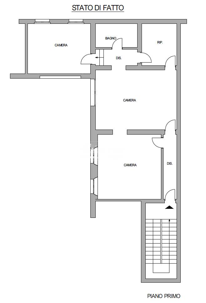
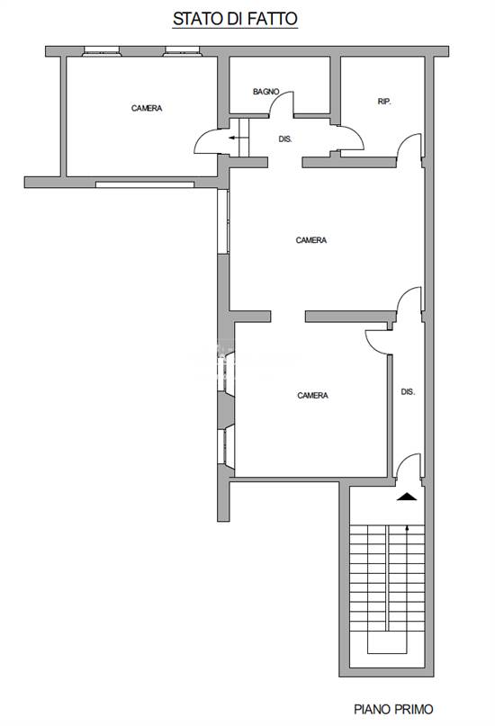
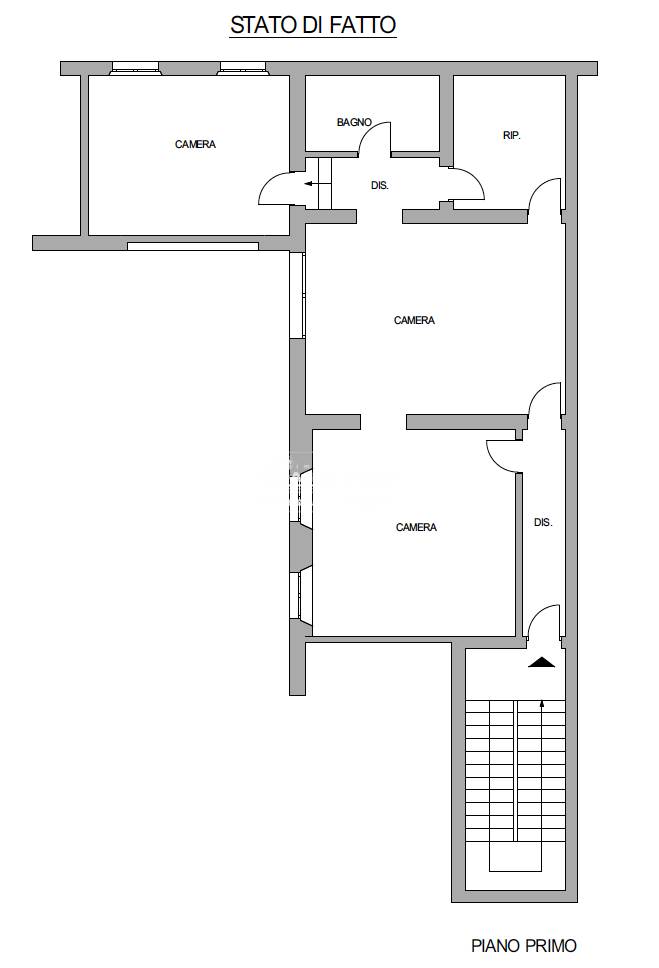
VD4560_UFF Centro Storico, vicino ai viali del Parco, in Palazzo Storico di particolare pregio disponiamo di libero ufficio posto al piano primo. E'composto da ingresso, tre stanze, bagno e zona cucina. Possibilità di posto auto all'interno del palazzo a parte del prezzo. Attuale destinazione d'uso è UFFICIO ma è possibile declassamento ad abitazione. Spese condominiali molto contenute. Info. c/o ns uffici Fissate una visita chiamando al tel. 059-224849 geom. Costantino Zara oppure geom. Cristinao Fella, in alternativa ulteriori info sul ns sito IMMOBILIAREMEDAGLIEDORO.it oppure GRUPPOMORE.it digitando CODICE DI RIFERIMENTO o presso ns uffici.
Caratteristiche principali Vedi tutte
Codice
VD4560_UFF
Città
Modena (Zona Viali)
Categoria
Ufficio
Prezzo
340.000 €
Spese condominiali
900 € / anno
Locali
3
Bagni
1
Mq
110
Posti auto
1
Piano
Primo
Classe energetica
G
162 kWh/m²a
Stato Immobile
Buono
Grado
Signorile
Posizione
Centro Storico
Lati Liberi
2
Arredi
Non Arredato
Riscaldamento
Autonomo
Tipo Riscaldam.
Caldaia
Tipo Impianto
Termosifoni
Fonte Energetica
Metano
Acqua Calda
Autonoma
Infissi
Legno Doppio Vetro
Serramenti
Buono
Persiana
Oscurante Legno
Pavim. Bagno
Ceramica
Pavimento
Parquet

Accessori: Cancello Elettrico, Impianto Satellitare, Porta Blindata, Ripostiglio

Chiudi tutte
Planimetrie
Photo 1
Photo 2
Photo 3
Generali
Photo 1Photo 2
Photo 3Photo 4
Photo 5Photo 6
CAMERA 1Photo 8
BAGNOPhoto 10
Photo 11Photo 12
Photo 13Photo 14
Photo 15
Mappa
viale Martiri della Libertà , Modena (MO)
Virtual tour 360°
ATRIO SALA CAMERA MATRIMONIALE 2 CUCINA CAMERA MATRIMONIALE 1 BAGNO
Agenzia di riferimento
Immobiliare Medaglie d'Oro
Immobiliare Medaglie d'Oro
Piazza Alessandro Manzoni, 4/1
41124 Modena MO
Rif. Annuncio VD4560_UFF
Vantaggi GruppoMore
Puoi acquistare questo immobile anche rivolgendoti ad un altro Agente Immobiliare del Gruppo MORE
Guarda l'elenco
Richiedi informazioni
Invia
Condividi su
Condividi su Facebook Condividi su Twitter Condividi su Linkedin Condividi su Whatsapp
Cookie preference