Italiano
English
340.000 €
110 m2
2 Camere
1 Posti auto
1° piano - senza ascensore
G
162 kWh/m²a

Appartamento in vendita a Modena (Centro storico), Viale Martiri Della Libertà

VD4560_ABITAZ. Centro Storico, vicino ai viali del Parco, in Palazzo Storico di particolare pregio disponiamo di libero appartamento posto al piano primo. L'appartamento è composto da ingresso, tre stanze bagno e cucina. Possibilità di posto auto all'interno del palazzo. Attuale destinazione d'uso è UFFICIO ma è possibile declassamento ad abitazione. Spese condominiali molto contenute. Info. c/o ns uffici
Caratteristiche principali Vedi tutte
Codice
VD4560_ABITAZ.
Città
Modena (Centro storico)
Categoria
Appartamento
Prezzo
340.000 €
Spese condominiali
900 € / anno
Locali
3
Camere
2
Mq
110
Posti auto
1
Piano
Primo
Classe energetica
G
162 kWh/m²a
Stato Immobile
Buono
Grado
Signorile
Posizione
Centro Storico
Lati Liberi
2
Giardino
No
Arredi
Non Arredato
Tipo Soggiorno
Doppio
Tipo Cucina
Abitabile
Riscaldamento
Autonomo
Tipo Riscaldam.
Caldaia
Tipo Impianto
Radiatori
Fonte Energetica
Gas
Acqua Calda
Autonoma
Infissi
Legno Doppio Vetro
Serramenti
Buono
Persiana
Oscurante Legno
Pavim. Giorno
Parquet
Pavim. Notte
Parquet
Pavim. Cucina
Ceramica
Pavim. Bagno
Ceramica
Accesso Disabili
No

Accessori: Cancello Elettrico, Impianto Satellitare, Porta Blindata, Ripostiglio

Chiudi tutte
Planimetrie
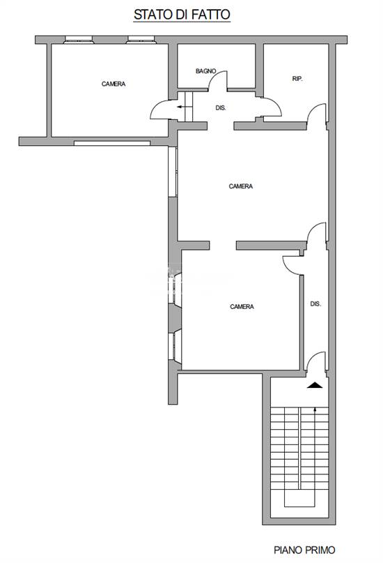
STATO DI FATTO
STATO DI FATTO
IPOTESI PROGETTO 1
IPOTESI PROGETTO 1
IPOTESI PROGETTO 2
IPOTESI PROGETTO 2
Generali
ESTERNOSTANZA 1
STANZA 1STANZA 2
STANZA 1STANZA 3
BAGNOBAGNO
STANZA 1STATO DI FATTO
IPOTESI PROGETTO 1IPOTESI PROGETTO 2
CUCINA o SECONDO BAGNOCUCINA o SECONDO BAGNO
Photo 15
Finiture
PARTICOLARE INGRESSO CONDOMINIALEPART. CALDAIA AUTONOMA
Mappa
Viale Martiri Della Libertà , Modena (MO)
Agenzia di riferimento
Immobiliare Medaglie d'Oro
Immobiliare Medaglie d'Oro
Piazza Alessandro Manzoni, 4/1
41124 Modena MO
Rif. Annuncio VD4560_ABITAZ.
Vantaggi GruppoMore
Puoi acquistare questo immobile anche rivolgendoti ad un altro Agente Immobiliare del Gruppo MORE
Guarda l'elenco
Richiedi informazioni
Invia
Condividi su
Condividi su Facebook Condividi su Twitter Condividi su Linkedin Condividi su Whatsapp
Cookie preference