Italiano
English
475.000 €
290 m2
4 Camere
2 Bagni
1 Box
5° piano - con ascensore
G
223,79 kWh/m²a

Appartamento in vendita a Modena (Zona Viali), Ad.ze viale Reiter

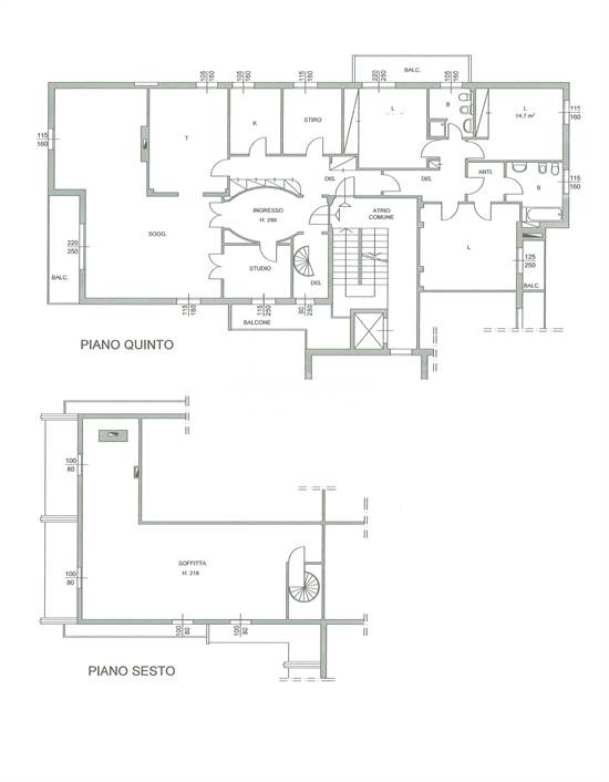
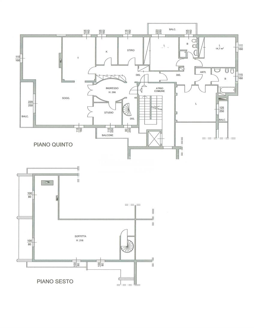
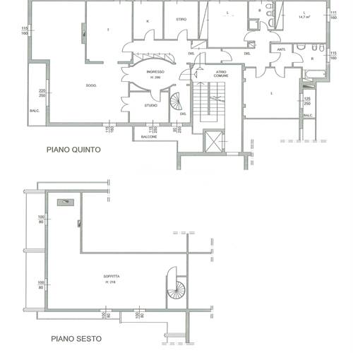
VD4460 Modena, zona viali, libero signorile ampio appartamento posto all’ultimo piano di un fabbricato ben abitato. L’appartamento è composto da ingresso, ampio salone doppio con balcone, cucina con adiacente zona pranzo, studio con balcone, disimpegno notte, 3 camere matrimoniali di cui una con balcone e 2 bagni, altra camera attualmente adibita a stiro, sovrastante sottotetto, di buona altezza, adibita hobby room, collegata con scala interna ma volendo anche con ingresso autonomo da vano scala. Appartamento completo di garage doppio in larghezza, due cantine e posto auto in cortile. Originariamente erano due appartamenti e a tutt’oggi ci sono due ingressi. Euro 475.000
Caratteristiche principali Vedi tutte
Codice
VD4460
Città
Modena (Zona Viali)
Categoria
Appartamento
Prezzo
475.000 €
Spese condominiali
6.000 € / anno
Locali
7
Camere
4
Bagni
2
Mq
290
Box
1
Mq Box
25
Balconi
4
Mq Balcone
24
Piano
Quinto
Classe energetica
G
223,79 kWh/m²a
Stato Immobile
Abitabile
Grado
Medio
Posizione
Centro
Panorama
Vista Aperta
Orientamento
Est Sud Ovest
Lati Liberi
3
Arredi
Possibilità
Tipo Soggiorno
Doppio
Tipo Cucina
Abitabile
Riscaldamento
Centralizzato
Tipo Riscaldam.
Caldaia
Tipo Impianto
Radiatori
Fonte Energetica
Gas
Acqua Calda
Centralizzata
Infissi
Legno
Serramenti
Buono
Persiana
Tapparella Legno
Pavim. Giorno
Parquet
Pavim. Notte
Parquet
Pavim. Cucina
Ceramica
Pavim. Bagno
Ceramica
Accesso Disabili
Nessuna Barriera

Accessori: Armadio a Muro, Ascensore, Bagno Handicap, Impianto Satellitare, Porta Blindata, Video Citofono

Chiudi tutte
Planimetrie
PLANIMETRIA
PLANIMETRIA
PLANIMETRIA
PLANIMETRIA
Generali
INGRESSOINGRESSO
SALONESALONE
SALONESALONE
STUDIOZONA PRANZO
PLANIMETRIAMQ
CUCINACAMERA MATR. 1
CAMERA MATR. 2CAMERA MATR. 3
BAGNO 2BAGNO 1
PART DOPPIO INGRERSSO E SCALE PER LA MANSARDA SOTTOTETTO
SOTTOTETTOAFFACCIO
GARAGEGARAGE MISURE
PARTI COMUNI AFFACCIO
Finiture
PART. VIDEOCITOFONO PART. CONTABILIZZATORI E VALVOLE TERMO
Mappa
Ad.ze viale Reiter , Modena (MO)
Video
Virtual tour 360°
INGRESSO STUDIO SOGGIORNO SOGGIORNO PRANZO CUCINA DISMPEGNO CAMERA 1 BAGNO 1 CAMERA 2 BAGNO 2 CAMERA 3 DISIMPEGNO MANSARDA
Agenzia di riferimento
Immobiliare Medaglie d'Oro
Immobiliare Medaglie d'Oro
Piazza Alessandro Manzoni, 4/1
41124 Modena MO
Rif. Annuncio VD4460
Addetto alle vendite
FELLA geom. Cristiano
FELLA geom. Cristiano
Vantaggi GruppoMore
Puoi acquistare questo immobile anche rivolgendoti ad un altro Agente Immobiliare del Gruppo MORE
Guarda l'elenco
Richiedi informazioni
Invia
Condividi su
Condividi su Facebook Condividi su Twitter Condividi su Linkedin Condividi su Whatsapp
Cookie preference