Italiano
English
Riservato
550 m2
8 Camere
4 Bagni
2 Box / 4 Posti auto
E

Villa in vendita a Castelnuovo Rangone GOLF CLUB

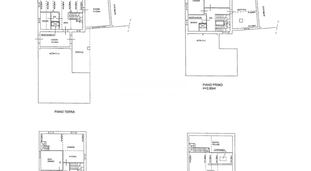
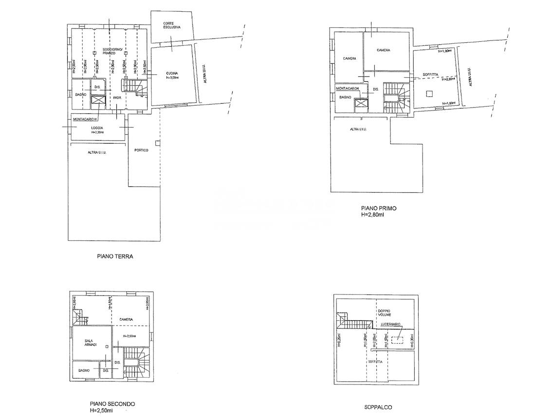
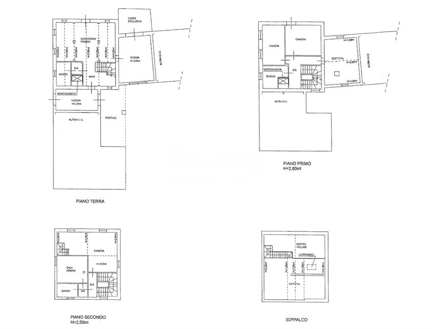
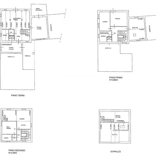
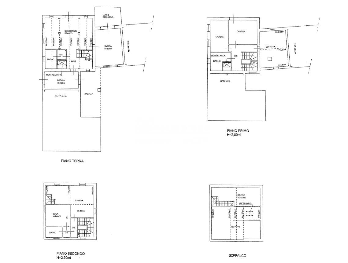
VD4171 Golf Club libera Villa bifamiliare libera subito con ampio giardino privato. Abitazione principale disposta su tre piani con ingresso, ampio salone con zona pranzo e soggiorno, cucina molto grande con caminetto centrale per la cottura a brace, bagno e ascensore al piano terra, disimpegno, tre ampie camere e bagno al piano primo, due camere, bagno e soppalco con sauna al piano secondo. Appartamento con ingresso indipendente composto da soggiorno-pranzo, cucinotto, disimpegno, due camere e bagno. Completano la proprietà un fabbricato ad uso ricovero attrezzature di 40 mq posto nel giardino privato, due ampi garage di 25 mq cadauno e quattro posti auto coperti. Contesto molto esclusivo con accesso diretto al campo di gioco. Info c/o ns uffici
Caratteristiche principali Vedi tutte
Codice
VD4171
Città
Castelnuovo Rangone
Categoria
Villa
Prezzo
Riservato
Spese condominiali
6.000 € / anno
Locali
12
Camere
8
Bagni
4
Mq
550
Box
2
Mq Box
55
Posti auto
4
Mq Giardino
1300
Classe energetica
E
Stato Immobile
Ottimo
Grado
Signorile
Posizione
Campagna
Panorama
Vista Giardino
Orientamento
Nord Ovest Sud Est
Lati Liberi
4
Giardino
Privato
Arredi
Semi Arredato
Tipo Soggiorno
Doppio
Tipo Cucina
Abitabile
Riscaldamento
Autonomo
Tipo Riscaldam.
Caldaia a Condensazione
Tipo Impianto
Pavimento
Fonte Energetica
Gas
Acqua Calda
Autonoma
Raffrescamento
Split
Infissi
Legno Doppio Vetro
Serramenti
Ottimo
Persiana
Oscurante Legno
Pavim. Giorno
Gres Porcellanato
Pavim. Notte
Gres Porcellanato
Pavim. Cucina
Gres Porcellanato
Pavim. Bagno
Gres Porcellanato
Accesso Disabili
Nessuna Barriera

Accessori: Antifurto, Aria Condizionata, Ascensore, Camino, Cancello Elettrico, Doppi Vetri, Impianto Satellitare, Lavanderia, Parco Condominiale, Porta Blindata, Ripostiglio, Video Citofono, Zanzariere

Chiudi tutte
Planimetrie
PLANIMETRIA
PLANIMETRIA
Generali
ESTERNOESTERNO
ESTERNOESTERNO
PLANIMETRIAVilla
VILLA - SOGGIORNOVILLA - SOGGIORNO
VILLA - SOGGIORNOVILLA - SCALA
VILLA - SOGGIORNOVILLA - CUCINA
CUCINAVILLA - CUCINA
VillaVILLA - CAMERA 1
VILLA - CAMERA 1Villa
VillaVilla
VillaVilla
Photo 23Photo 24
VillaVilla
VillaAppartamento piccolo - SOGGIORNO
Appartamento piccolo - SOGGIORNOAppartamento piccolo - CUCINA
Appartamento piccolo - CAMERAAppartamento
Photo 33Photo 34
GARAGE 2 GIARDINO PRIVATO
GIARDINO PRIVATOGIARDINO PRIVATO
GIARDINO PRIVATOPhoto 40
Finiture
CENTRALE TERMICA
Mappa
GOLF CLUB , Castelnuovo Rangone (MO)
Video
Agenzia di riferimento
Immobiliare Medaglie d'Oro
Immobiliare Medaglie d'Oro
Piazza Alessandro Manzoni, 4/1
41124 Modena MO
Rif. Annuncio VD4171
Addetto alle vendite
FELLA geom. Cristiano
FELLA geom. Cristiano
ZARA geom. Costantino
ZARA geom. Costantino
Vantaggi GruppoMore
Puoi acquistare questo immobile anche rivolgendoti ad un altro Agente Immobiliare del Gruppo MORE
Guarda l'elenco
Richiedi informazioni
Invia
Condividi su
Condividi su Facebook Condividi su Twitter Condividi su Linkedin Condividi su Whatsapp
Cookie preference