Italiano
English
295.000 €A reddito
103 m2
1 Bagni
In fase di valutazione

Ufficio in vendita a Modena (Centro storico), ad.ze via Ganaceto

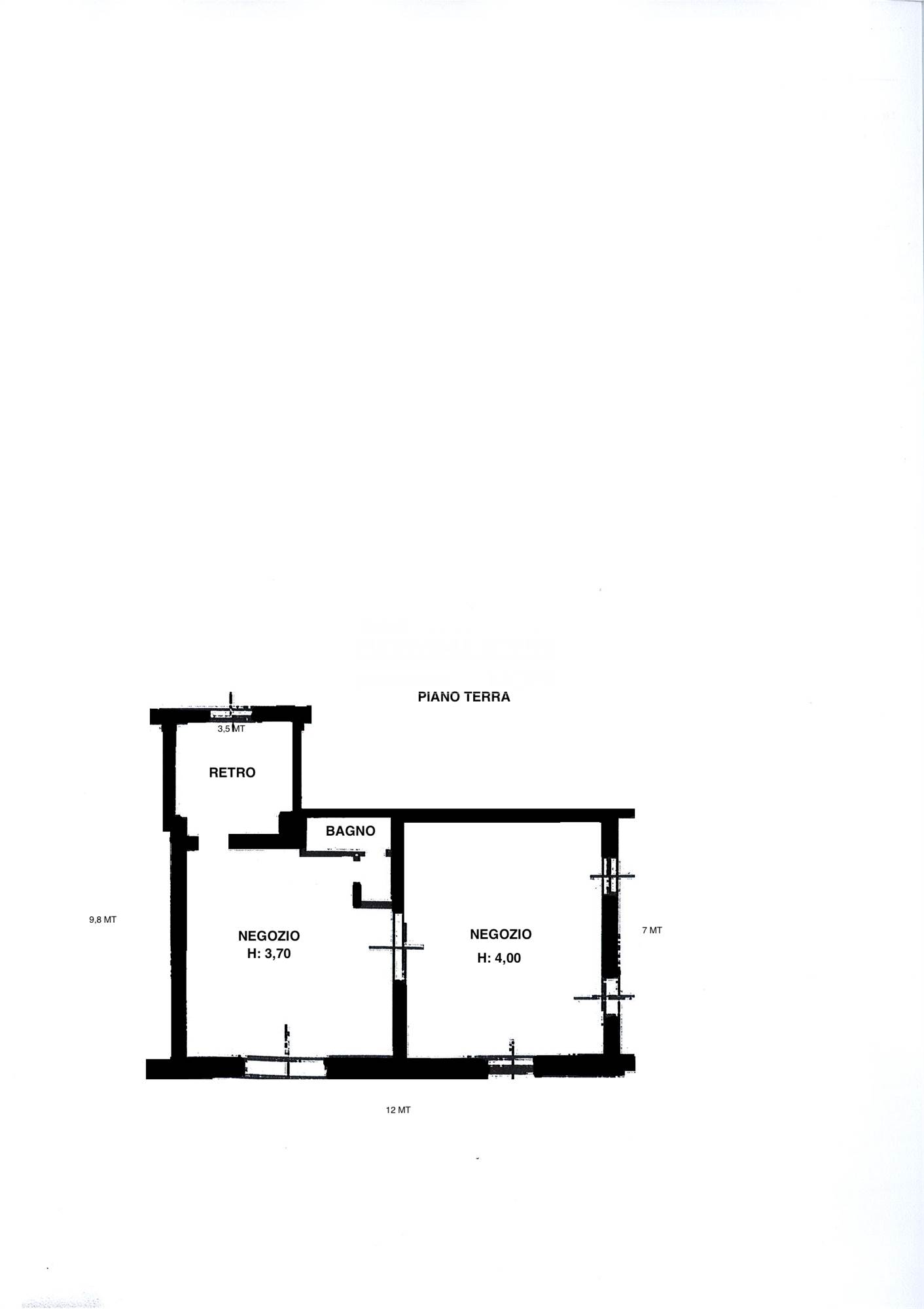
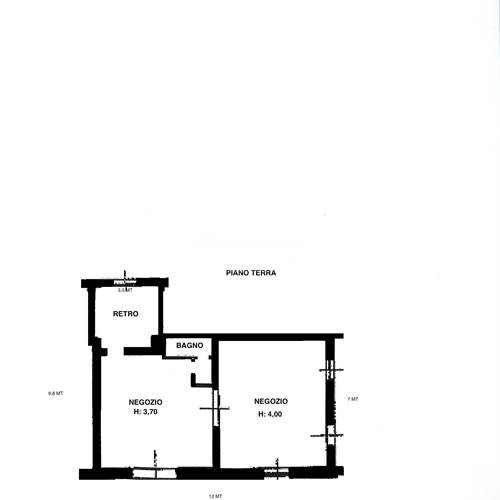
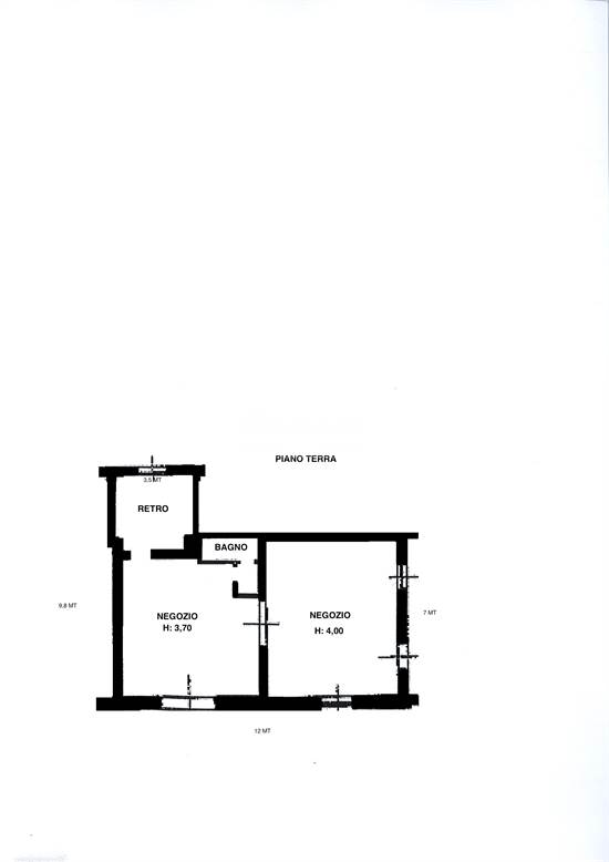
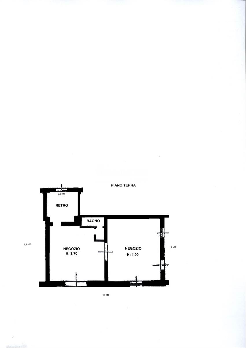
VD0813 Centro Storico (senza ZTL), in zona ben accessibile (ad.ze Camera di Commercio) in prestigioso palazzo completamente ristrutturato, proponiamo studio / ufficio / negozio posto al piano terra con ingresso da vetrata su fronte strada o dal cortile condominiale. Il locale è di circa 100 mq ed è composto da due ampie stanze, studio e servizio. Richiasta 295.000 Attualmente a reddito ad euro 1.000 mensili in cedolare secca. (Possibile cambio di destinazione d'uso) OTTIMO DA INVESTIMENTO
Caratteristiche principali Vedi tutte
Codice
VD0813
Città
Modena (Centro storico)
Categoria
Ufficio
Prezzo
295.000 €
Locali
3
Bagni
1
Mq
103
Classe energetica
In fase di valutazione
Stato Immobile
Buono
Grado
Signorile
Posizione
Centro Storico
Lati Liberi
2
Arredi
Possibilità
Riscaldamento
Autonomo
Tipo Impianto
Radiatori
Acqua Calda
Autonoma
Infissi
Metallo Doppio Vetro
Pavim. Bagno
Ceramica
Pavimento
Ceramica
Numero Vetrine
Una
Accesso Disabili
Nessuna Barriera
Chiudi tutte
Planimetrie
PLANIMETRIA
PLANIMETRIA
Generali
ESTERNO ESTERNO
ESTERNO UFFICIO 1
UFFICIO 1UFFICIO 2
UFFICIO 2UFFICIO 2
UFFICIO 2UFFICIO 3
Photo 11BAGNO
ESTERNO Photo 14
Mappa
ad.ze via Ganaceto , Modena (MO)
Video
Virtual tour 360°
Agenzia di riferimento
Immobiliare Medaglie d'Oro
Immobiliare Medaglie d'Oro
Piazza Alessandro Manzoni, 4/1
41124 Modena MO
Rif. Annuncio VD0813
Addetto alle vendite
FELLA geom. Cristiano
FELLA geom. Cristiano
Vantaggi GruppoMore
Puoi acquistare questo immobile anche rivolgendoti ad un altro Agente Immobiliare del Gruppo MORE
Guarda l'elenco
Richiedi informazioni
Invia
Condividi su
Condividi su Facebook Condividi su Twitter Condividi su Linkedin Condividi su Whatsapp
Cookie preference