APP.TO DI 227 MQ. IN PALAZZINA NUOVA ZONA B.PASTORE
Italiano
840.000 €
227 m2
3 Camere
3 Bagni
3° piano - con ascensore
A4
0,4 kWh/m²a

APP.TO DI 227 MQ. IN PALAZZINA NUOVA ZONA B.PASTORE

In vendita • Modena (Buon Pastore) - VIA CELLINI, 7
VD873-D. Nostra esclusiva. Via Cellini, zona Buon Pastore, in palazzina di nuova costruzione (Classe Energetica "A4") di sole 5 unità vendesi app.to "D" ubicato al piano terzo-quarto con ascensore di 227 mq.
Caratteristica peculiare dell’intervento è l’adozione di avanzate tecnologie impiantistiche d’avanguardia volte al massimo contenimento del consumo energetico nel pieno rispetto dell’ambiente, infatti tutte le unità immobiliari saranno edificate in classe “A4” (secondo la delibera della Regione Emilia Romagna dgr. 20 luglio 2015, n. 967).
Il capitolato prevede finiture di pregio tutte personalizzabili, pavimenti in ceramica grandi formati e parquet, rubinetterie e sanitari di design, riscaldamento autonomo a pavimento in pompa di calore, aria condizionata, tapparelle motorizzate, serramenti in alluminio, impianto per il ricircolo dell'aria meccanizzato, pannelli fotovoltaici, impianto di domotica Bticino My-Home, predisposizione per antifurto, zanzariere e addolcitore acque.
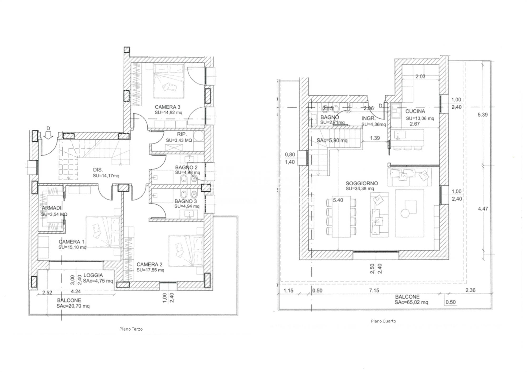
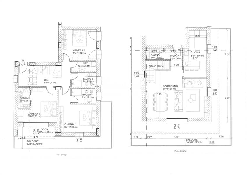
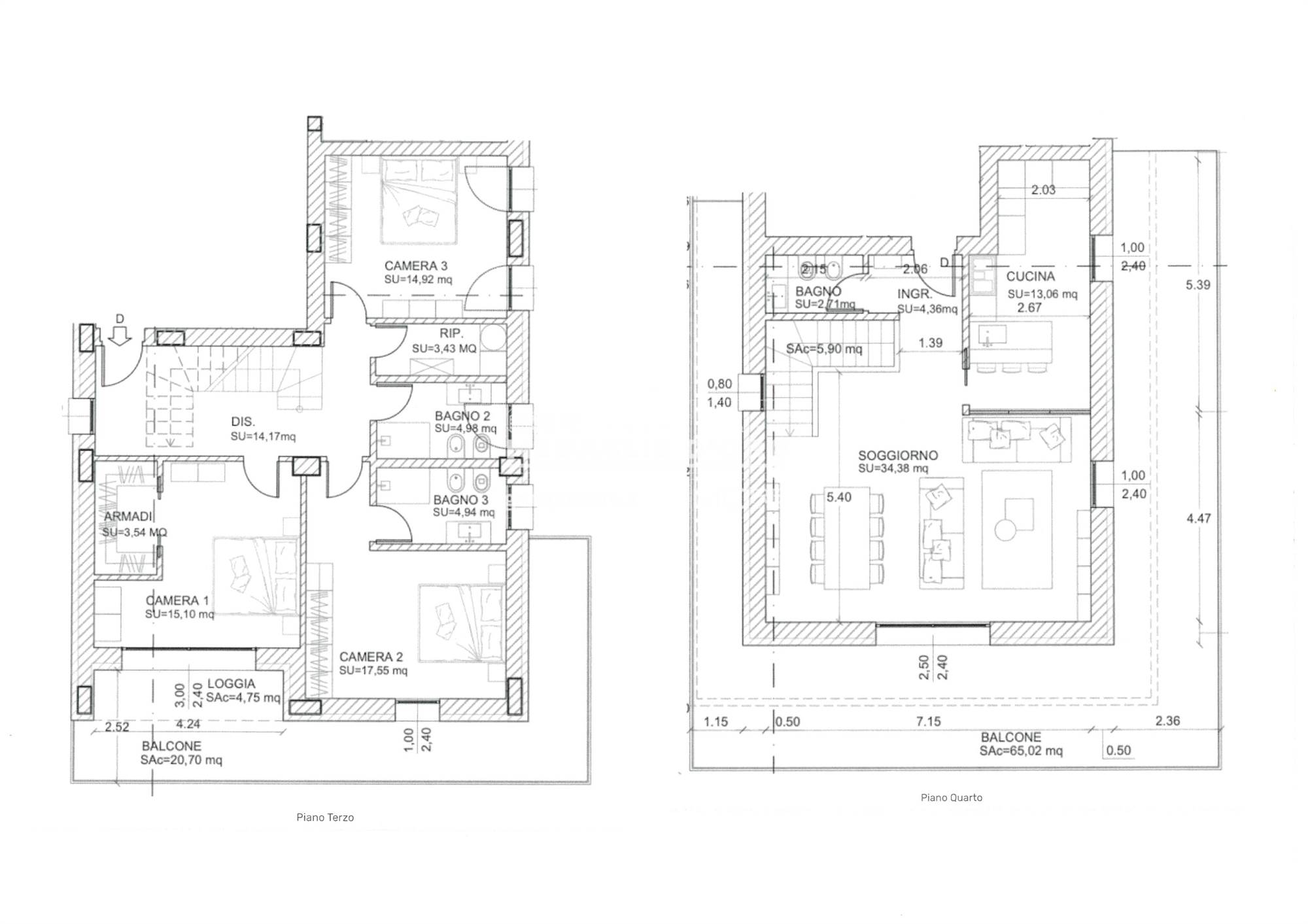
App.to così disposto: ingresso, soggiorno con sbocco su terrazzo semi coperto, cucina abitabile e un bagno.
Al piano superiore dis.notte, tre camere da letto matrimoniali di cui una con terrazzo e due bagni finestrati.
Possibilità di usufruire delle detrazioni derivanti dal Sisma Bonus acquisti.
Possibilità di personalizzazione degli spazi e delle finiture interne.
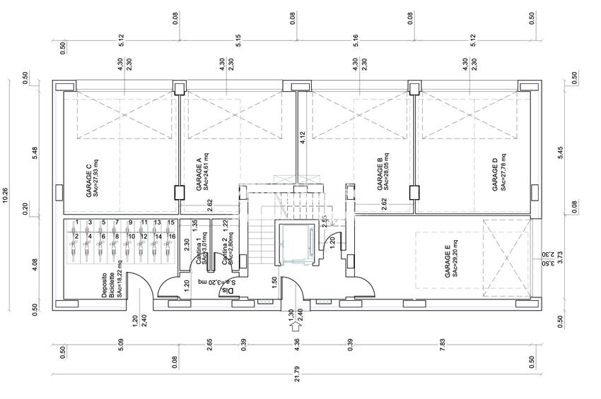
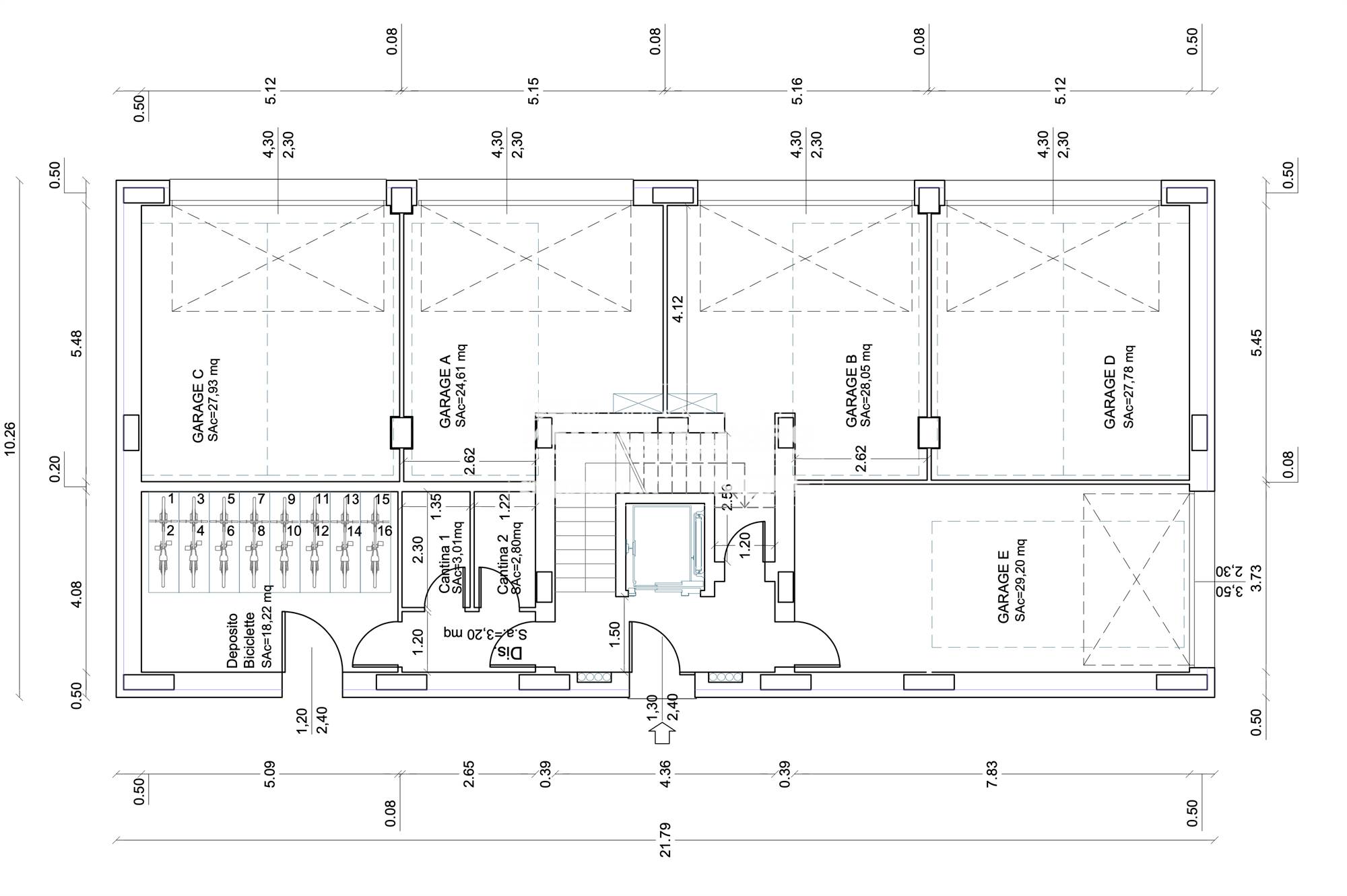
Possibilità di scelta tra diversi garage, cantine e posti auto a parte nel prezzo.
Prezzo: € 840.000
Consegna dicembre 2026.
Per informazioni e visite: 335-6880908 geom. Fella Cristiano.
In alternativa ulteriori info sul ns sito GRUPPOMORE.IT digitando CODICE DI RIFERIMENTO o inviaci una mail gestionecantieri-gruppomore@cataimm.it
Caratteristiche principali Vedi tutte
Codice
MO873D-D
Città
Modena (Buon Pastore)
Categoria
Appartamento
Prezzo
840.000 €
Spese condominiali
800 € / anno
Locali
8
Camere
3
Bagni
3
Mq
227
Terrazzi
2
Piano
Terzo
Classe energetica
A4
0,4 kWh/m²a
Stato Immobile
In Costruzione
Grado
Signorile
Posizione
Centro
Panorama
Vista Aperta
Orientamento
Nord Ovest Sud Est
Lati Liberi
3
Arredi
Non Arredato
Tipo Soggiorno
Soggiorno
Tipo Cucina
Abitabile
Riscaldamento
Autonomo
Tipo Riscaldam.
Pompa di Calore
Tipo Impianto
Pavimento
Fonte Energetica
Fotovoltaico
Acqua Calda
Autonoma
Raffrescamento
Split
Infissi
Alluminio Doppio Vetro
Serramenti
Nuovo
Persiana
Tapparella Metallo
Pavim. Giorno
Parquet
Pavim. Notte
Parquet
Pavim. Cucina
Ceramica
Pavim. Bagno
Ceramica
Accesso Disabili
Nessuna Barriera
Accesso interno disabili
Parziale
Isolamento
Presente
Isolamento termico
Cappotto esterno
Isolamento acustico
Isolamento completo

Accessori: Antifurto, Aria Condizionata, Armadio a Muro, Ascensore, Bagno Handicap, Cancello Elettrico, Doppi Vetri, Fibra Ottica, Impianto Fotovoltaico, Passaggio Automobilistico, Passaggio Pedonale, Porta Blindata, Ripostiglio, Tapparelle Elettriche, Tavolini Esterni, Video Citofono

Chiudi tutte
Planimetrie
Photo 1
Photo 2
Photo 3
Mappa
VIA CELLINI 7, Modena (MO)
Agenzia di riferimento
Immobiliare Medaglie d'Oro
Immobiliare Medaglie d'Oro
Piazza Manzoni, 4/1
41124 Modena MO
Rif. Annuncio MO873D-D
Richiedi informazioni
Invia
Condividi su
Condividi su Facebook Condividi su Twitter Condividi su Linkedin Condividi su Whatsapp
Cookie preference