Italiano
English
480.000 €
166 m2
3 Camere
2 Bagni
1 Box / 1 Posti auto
1° piano - con ascensore
A4
0,4 kWh/m²a

Appartamento in vendita a Modena VIA DEL MURAZZO

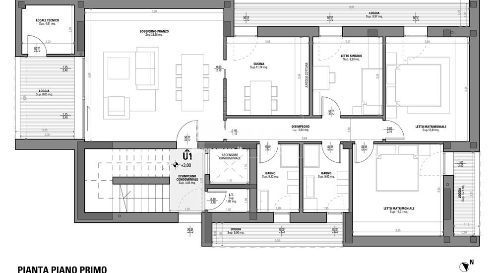
VD871_1 Nostra Esclusiva, Zona Parco Ferrari, Via del Murazzo, in palazzina di prossima realizzazione in classe "A4" (Classe Energetica A4-NZEB) di tre piani e sole tre unità abitative vendesi appartamento al piano primo con ascensore di 166 mq. dotato di logge coperte, garage e posto auto.
Caratteristica peculiare dell’intervento è l’adozione di avanzate tecnologie impiantistiche d’avanguardia volte al massimo contenimento del consumo energetico nel pieno rispetto dell’ambiente, infatti tutte le unità immobiliari saranno edificate in classe “A4” (secondo la delibera della Regione Emilia Romagna dgr. 20 luglio 2015, n. 967).
Il capitolato prevede finiture di pregio tutte personalizzabili, pavimenti in ceramica grandi formati, rubinetterie e sanitari di design, riscaldamento autonomo a pavimento in pompa di calore, infissi in pvc dotati di zanzariere e tapparelle motorizzate, impianto per il ricircolo dell'aria meccanizzato di tipo puntuale, pannelli fotovoltaici, videocitofono e predisposizione per impianto di climatizzazione.
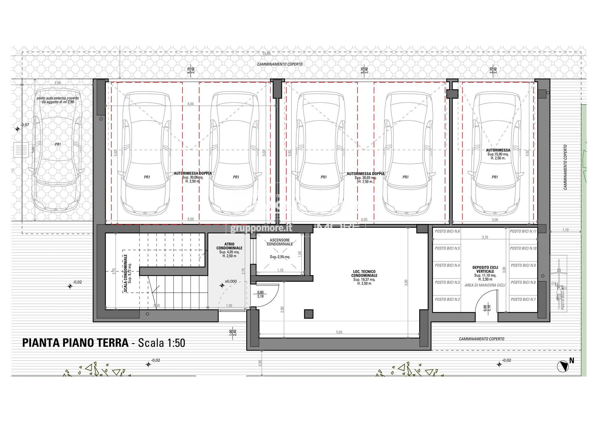
Appartamento così disposto: soggiorno/pranzo con sbocco su loggia coperta, centrale termica, cucina abitabile, disimpegno notte, tre camere da letto dotate di loggia coperta e due bagni. A completamento della proprietà un garage e un posto auto scoperto al piano terra.
Possibilità di personalizzazione degli spazi e delle finiture interne.
Prezzi a partire da €. 480.000
Consegna primavera 2027.
Per informazioni e visite: 335-6880908 geom. Fella Cristiano, 335-7853006 geom. Zara Costantino.
In alternativa ulteriori info sul ns sito GRUPPOMORE.IT digitando CODICE DI RIFERIMENTO o inviaci una mail gestionecantierigruppomore@cataimm.it
Caratteristiche principali Vedi tutte
Codice
MO871D_1
Città
Modena
Categoria
Appartamento
Prezzo
480.000 €
Locali
6
Camere
3
Bagni
2
Mq
166
Box
1
Mq Box
18
Posti auto
1
Balconi
4
Piano
Primo
Classe energetica
A4
0,4 kWh/m²a
Stato Immobile
Prossima Realizzazione
Grado
Signorile
Orientamento
Nord Ovest Sud Est
Lati Liberi
4
Tipo Soggiorno
Soggiorno
Tipo Cucina
Abitabile
Riscaldamento
Autonomo
Tipo Riscaldam.
Pompa di Calore
Tipo Impianto
Pavimento
Fonte Energetica
Fotovoltaico
Acqua Calda
Autonoma
Raffrescamento
Predisposizione
Infissi
PVC Doppio Vetro
Serramenti
Nuovo
Persiana
Tapparella PVC
Pavim. Giorno
Gres Porcellanato
Pavim. Notte
Gres Porcellanato
Pavim. Cucina
Gres Porcellanato
Pavim. Bagno
Gres Porcellanato
Accesso Disabili
Nessuna Barriera
Accesso interno disabili
Pieno accesso
Isolamento
Presente
Isolamento acustico
Isolamento completo

Accessori: Aria Condizionata, Ascensore, Bagno Handicap, Cancello Elettrico, Doppi Vetri, Impianto Fotovoltaico, Passaggio Automobilistico, Passaggio Pedonale, Porta Blindata, Rete Dati, Tapparelle Elettriche, Video Citofono, Zanzariere

Chiudi tutte
Planimetrie
PLANIMETRIA
PLANIMETRIA
Photo 2
Photo 3
Generali
RENDERINGRENDERING
RENDERINGRENDERING
PLANIMETRIA
Mappa
VIA DEL MURAZZO , Modena (MO)
Agenzia di riferimento
Immobiliare Medaglie d'Oro
Immobiliare Medaglie d'Oro
Piazza Alessandro Manzoni, 4/1
41124 Modena MO
Rif. Annuncio MO871D_1
Vantaggi GruppoMore
Puoi acquistare questo immobile anche rivolgendoti ad un altro Agente Immobiliare del Gruppo MORE
Guarda l'elenco
Richiedi informazioni
Invia
Condividi su
Condividi su Facebook Condividi su Twitter Condividi su Linkedin Condividi su Whatsapp
Cookie preference