Italiano
English
Riservato
143 m2
3 Camere
2 Bagni
1 Box / 1 Posti auto
1° piano - con ascensore
A4
0,4 kWh/m²a

Appartamento in vendita a Modena (Buon Pastore), Viale Buon Pastore

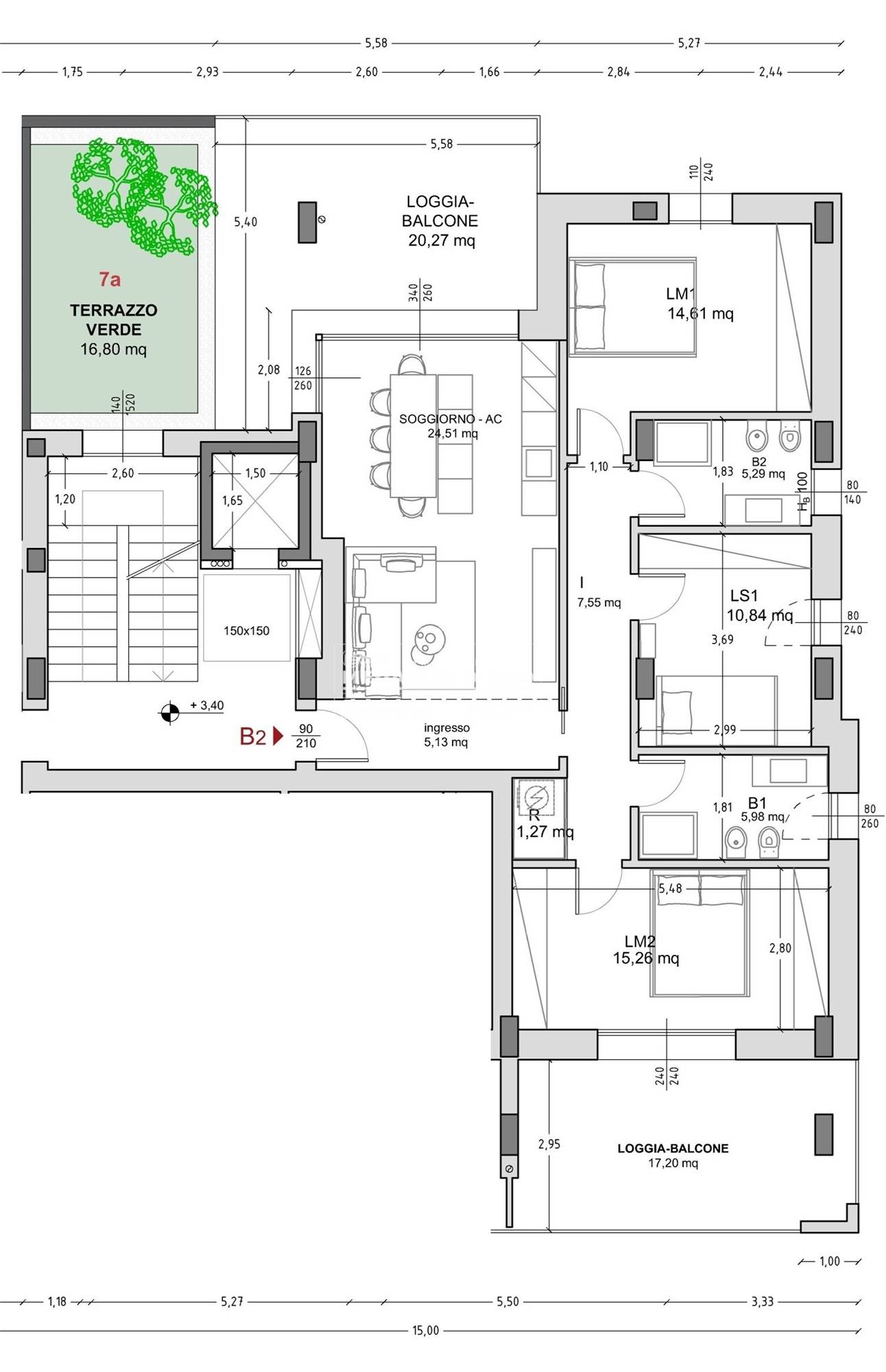
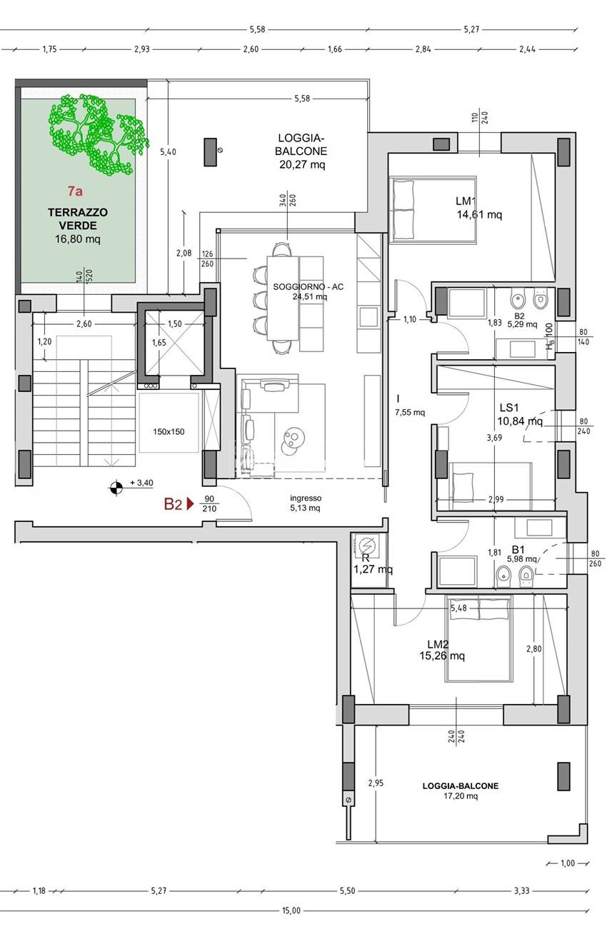
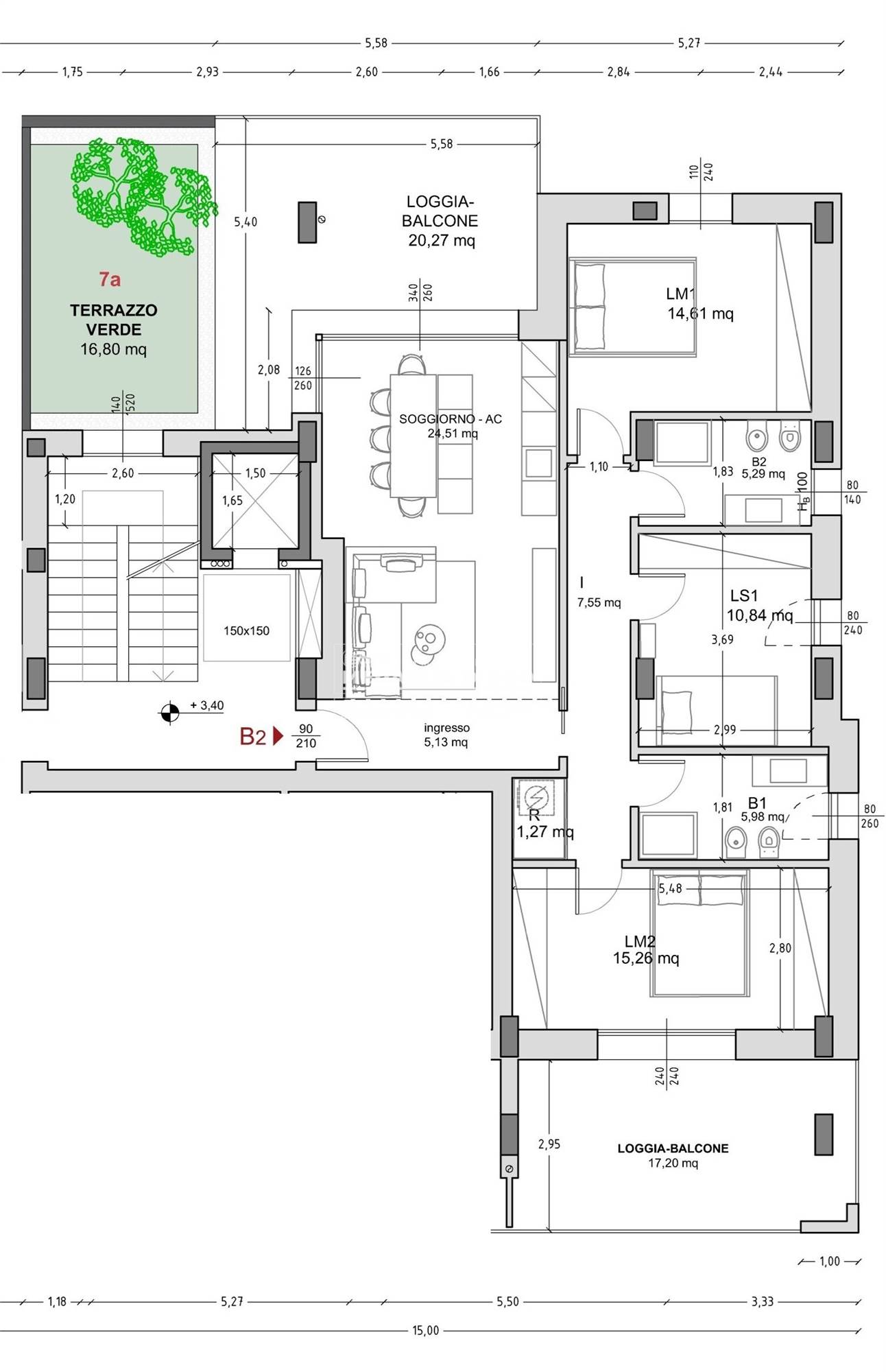
MO794D-BPB2. Nostra esclusiva. Viale Buon Pastore, all'interno del nuovo comparto Ex-AMCM disponibile app.to B2 di 143 mq. comm. ubicato al piano primo di cinque con ascensore.
App.to così disposto: ingresso, soggiorno con cucina a vista e ampia loggia coperta, dis. notte, tre camere da letto matrimoniali (una dotata di seconda loggia) una camera singola, ripostiglio e due bagni (uno cieco).
Il progetto di riqualificazione dell’intera area si realizzerà tra le vie Peretti, Buon Pastore e Carlo Sigonio situato nelle immediate vicinanze del centro storico prevede oltre la realizzazione delle 4 palazzine in classe "A4", una palazzina che ospiterà il nuovo Teatro delle Passioni, una grande piazza pedonale e ciclabile con verde e sedute, un parcheggio seminterrato di circa 245 posti, un’area foyer ed uno uno spazio pubblico.
Al centro del comparto una palestra in una nuova costruzione di circa 2.150 metri quadrati; l'impianto sportivo sarà fruibile sia in modalità scolastica, sia per gli allenamenti e le gare sportive.
È previsto altresì la realizzazione di un supermercato di quartiere (900 metri quadri di superficie di vendita), oltre a uffici e spazi per eventi e ristorazione.
Il complesso è progettato secondo le tecnologie e le tecniche più recenti ed innovative con l’obiettivo di raggiungere il massimo della funzionalità e della razionalità delle singole unità immobiliari, così da rendere ininfluenti le spese di gestione relative agli impianti tecnologici.
Caratteristica peculiare dell’intervento è l’adozione di avanzate tecnologie impiantistiche d’avanguardia volte al massimo contenimento del consumo energetico nel pieno rispetto dell’ambiente, infatti tutte le unità immobiliari saranno edificate in classe “A4” (secondo la delibera della Regione Emilia Romagna dgr. 20 luglio 2015, n. 967).
Il capitolato prevede finiture di pregio tutte personalizzabili, pavimenti in ceramica grandi formati e parquet, rubinetterie e sanitari di design, riscaldamento a pavimento, aria condizionata, tapparelle motorizzate, impianto per il ricircolo dell'aria meccanizzato, pannelli fotovoltaici, pannelli solari termici, domotica e predisposizione per antifurto.
Possibilità di personalizzazione degli spazi e delle finiture interne.
Possibilità di scelta tra diverse autorimesse, posti auto e cantine a parte nel prezzo.
Trattativa riservata.
Per informazioni e visite previo appuntamento in ufficio: 335-6880908 geom. Fella Cristiano, 335-7853006 geom. Zara Costantino
Caratteristiche principali Vedi tutte
Codice
MO794D-BPB2 - P.1
Città
Modena (Buon Pastore)
Categoria
Appartamento
Prezzo
Riservato
Locali
5
Camere
3
Bagni
2
Mq
143
Box
1
Posti auto
1
Terrazzi
2
mq Terrazzo
39
Piano
Primo
Classe energetica
A4
0,4 kWh/m²a
Stato Immobile
Prossima Realizzazione
Grado
Signorile
Posizione
Centro
Panorama
Vista Aperta
Orientamento
Nord Ovest Sud Est
Lati Liberi
3
Giardino
No
Arredi
Non Arredato
Tipo Soggiorno
Soggiorno
Tipo Cucina
A Vista
Riscaldamento
Conta Calorie
Tipo Riscaldam.
Pompa di Calore
Tipo Impianto
Pavimento
Fonte Energetica
Fotovoltaico
Acqua Calda
Centralizzata a Pannelli
Raffrescamento
Split
Infissi
Legno Triplo Vetro
Serramenti
Nuovo
Persiana
Tapparella PVC
Accesso Disabili
Nessuna Barriera

Accessori: Antifurto, Aria Condizionata, Armadio a Muro, Ascensore, Bagno Handicap, Cancello Elettrico, Doppi Vetri, Fibra Ottica, Impianto Domotica, Impianto Fotovoltaico, Impianto Satellitare, Lavanderia, Pannelli Solari, Passaggio Automobilistico, Passaggio Pedonale, Porta Blindata, Rete Dati, Ripostiglio, Tapparelle Elettriche, Tavolini Esterni, Video Citofono, Video Sorveglianza, Zanzariere

Chiudi tutte
Planimetrie
Photo 1
Photo 2
Generali
RENDER ESTERNOPhoto 2
RENDER ESTERNORENDER ESTERNO
Photo 5Photo 6
Mappa
Viale Buon Pastore , Modena (MO)
Video
Agenzia di riferimento
Immobiliare Medaglie d'Oro
Immobiliare Medaglie d'Oro
Piazza Alessandro Manzoni, 4/1
41124 Modena MO
Rif. Annuncio MO794D-BPB2 - P.1
Addetto alle vendite
ZARA geom. Costantino
ZARA geom. Costantino
FELLA geom. Cristiano
FELLA geom. Cristiano
Vantaggi GruppoMore
Puoi acquistare questo immobile anche rivolgendoti ad un altro Agente Immobiliare del Gruppo MORE
Guarda l'elenco
Richiedi informazioni
Invia
Condividi su
Condividi su Facebook Condividi su Twitter Condividi su Linkedin Condividi su Whatsapp
Cookie preference