Italiano
English
450.000 €
145 m2
4 Camere
2 Bagni
2° piano - con ascensore
A4
0,4 kWh/m²a

Appartamento in vendita a Modena (Crocetta), Via Due Canali Nord 235

MO763D-U3. Zona Crocetta, in palazzina di prossima realizzazione (Classe A4), disponibile appartamento di 145 mq. ubicato al piano secondo di quattro con ascensore.
Immobile ubicato in strada tranquilla, dotato di: terrazzo coperto, riscaldamento a pavimento, aria condizionata, impianto fotovoltaico, ventilazione meccanica controllata, domotica, predisposizione per antifurto e colonnina ricarica auto elettriche nei garage.
La costruzione antisismica sarà realizzata prestando particolare attenzione al contenimento del consumo energetico e al confort abitativo.
Il capitolato prevede finiture di pregio tutte personalizzabili, pavimenti in ceramica grandi formati e parquet, rivestimenti in mosaico, rubinetterie e sanitari di design.
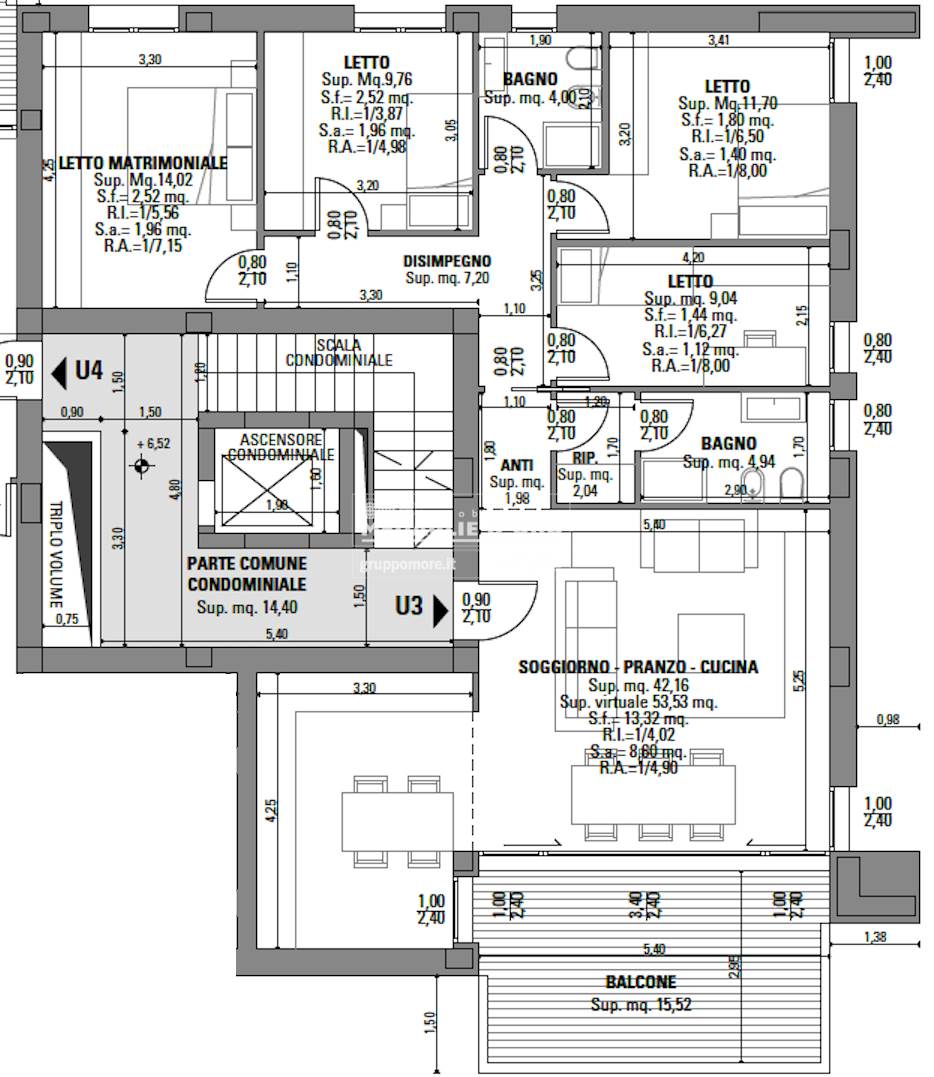
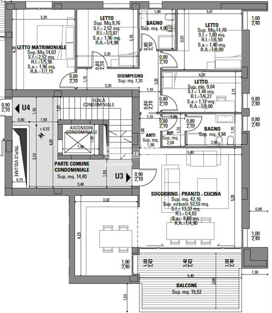
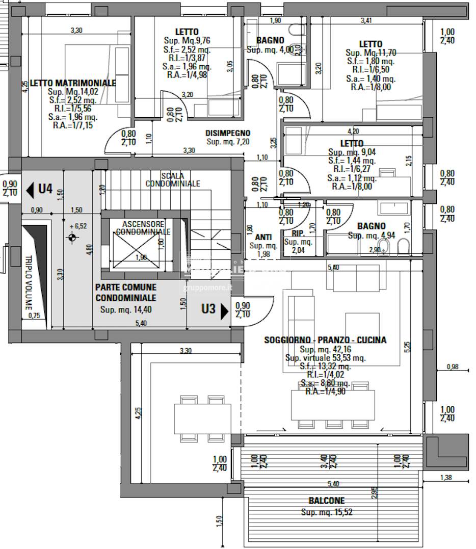
Immobile così disposto: ingresso, soggiorno, cucina abitabile e terrazzo, dis. notte, quattro camere da letto, due bagni e ripostiglio.
Compresi nel prezzo un garage al piano terra e un posto auto interno in proprietà.
Possibilità di personalizzazione degli spazi e delle finiture interne.
Prezzo Euro 450'000 €.
Consegna estate 2024.
Per informazioni e visite: 335-6880908 geom. Fella Cristiano, 335-7853006 geom. Zara Costantino.
In alternativa ulteriori info sul ns sito GRUPPOMORE.IT digitando CODICE DI RIFERIMENTO o inviaci una mail gestionecantieri-gruppomore@cataimm.it
Caratteristiche principali Vedi tutte
Codice
MO763D_U3
Città
Modena (Crocetta)
Categoria
Appartamento
Prezzo
450.000 €
Spese condominiali
700 € / anno
Locali
6
Camere
4
Bagni
2
Mq
145
Terrazzi
1
mq Terrazzo
16
Piano
Secondo
Classe energetica
A4
0,4 kWh/m²a
Stato Immobile
Prossima Realizzazione
Grado
Signorile
Lati Liberi
3
Giardino
Comune
Arredi
Non Arredato
Tipo Soggiorno
Soggiorno
Tipo Cucina
Abitabile
Riscaldamento
Autonomo
Tipo Riscaldam.
Pompa di Calore
Tipo Impianto
Pavimento
Fonte Energetica
Fotovoltaico
Acqua Calda
Autonoma
Infissi
PVC Doppio Vetro
Serramenti
Nuovo
Persiana
Tapparella Metallo
Pavim. Giorno
Parquet
Pavim. Notte
Parquet
Pavim. Cucina
Gres Porcellanato
Pavim. Bagno
Gres Porcellanato
Accesso Disabili
Nessuna Barriera

Accessori: Aria Condizionata, Ascensore, Bagno Handicap, Cancello Elettrico, Doppi Vetri, Impianto Fotovoltaico, Impianto Satellitare, Lavanderia, Porta Blindata, Ripostiglio, Tapparelle Elettriche, Video Citofono, Zanzariere

Chiudi tutte
Planimetrie
Photo 1
Photo 2
Generali
Photo 1Photo 2
Photo 3PLANIMETRIA P.T.
RENDER ESTERNORENDER ESTERNO
RENDER ESTERNORENDER ESTERNO
RENDER ESTERNO
Mappa
Via Due Canali Nord 235, Modena (MO)
Agenzia di riferimento
Immobiliare Medaglie d'Oro
Immobiliare Medaglie d'Oro
Piazza Alessandro Manzoni, 4/1
41124 Modena MO
Rif. Annuncio MO763D_U3
Vantaggi GruppoMore
Puoi acquistare questo immobile anche rivolgendoti ad un altro Agente Immobiliare del Gruppo MORE
Guarda l'elenco
Richiedi informazioni
Invia
Condividi su
Condividi su Facebook Condividi su Twitter Condividi su Linkedin Condividi su Whatsapp
Cookie preference