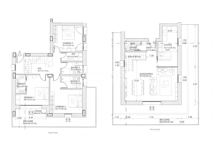
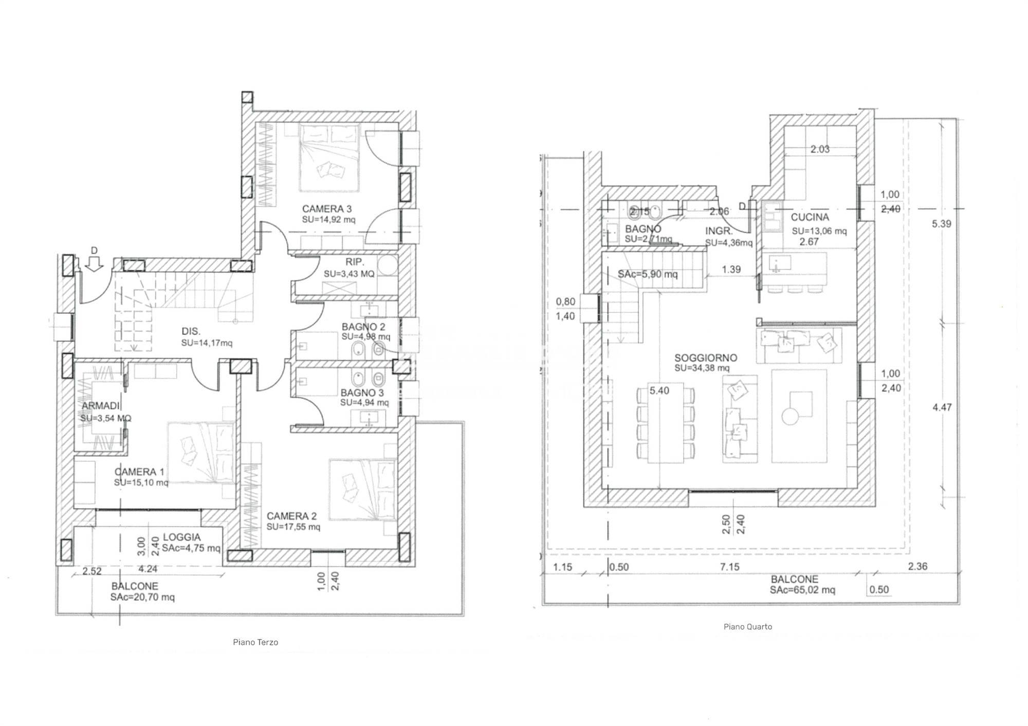
Accessories: Alarm, Air Conditioning, Cupboard, Elevator, Handicap Bathroom, Electric gate, Double Glazing, Optical Fiber, Photovoltaic, Passing Car, Pedestrian Crossing, Armored door, Closet, Electric shutters, Outdoor Tables, Video Intercom